甄选案例

专业大咖设计  海量精美案例任您品鉴

1200平大地资本现代风格-个性化设计

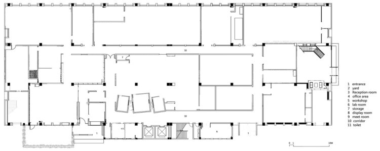
业主需求&原始结构图

功能区域划分明确,需要大面积的工作区域,尽显新中式现代风格。

1200平大地资本现代风格-个性化设计-业主需求&原始结构图

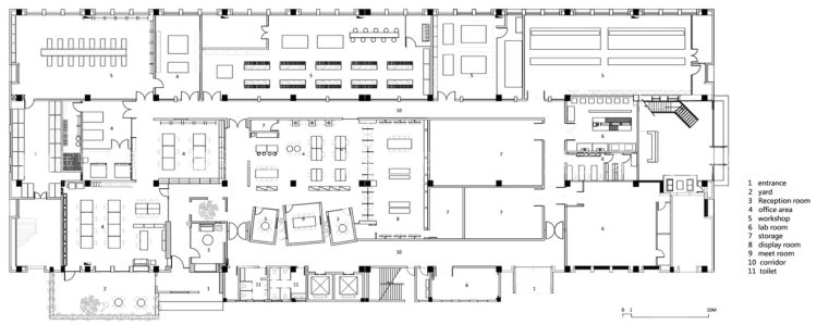
平面设计图及设计说明

入户大门在设计上,我们规划了一处缓冲空间,方便家长接送有个缓冲地带。 户外大面透明玻璃幕墙能够一览无遗看清园区内的接待区,从而减轻园内孩子接送上以及参观人群的心理上距离感。 外墙材质上保留了原有灰色文化墙,门头招牌上延伸了外墙材质保留整体感,统一和谐。

1200平大地资本现代风格-个性化设计-平面设计图及设计说明

客厅效果图及设计说明

互动与开放交织与分离情境引导设计 采用多种形状来塑造,呈现出空间的方正感与奇妙性。

1200平大地资本现代风格-个性化设计-客厅效果图及设计说明 1200平大地资本现代风格-个性化设计-客厅效果图及设计说明

餐厅效果图及设计说明

真正的精致,在别人看不见的地方也不会随随便便。 售楼处建筑风格以装饰主义风格为主,局部点缀现代元素。

1200平大地资本现代风格-个性化设计-餐厅效果图及设计说明 1200平大地资本现代风格-个性化设计-餐厅效果图及设计说明

卧室效果图及设计说明

那是一个可以任意抽离、沉浸的世界,它模糊时空,似乎和光一样自由 造型简洁、大气、带有高贵新锐的品质。视野通透,光线明亮,形成一个清新的成长环境。 采用多种形状来塑造,呈现出空间的,粗犷却不失艺术性。 双走廊设计带来双倍的通透感,同时也打破传统,实现空间的多重可能。

1200平大地资本现代风格-个性化设计-卧室效果图及设计说明 1200平大地资本现代风格-个性化设计-卧室效果图及设计说明 1200平大地资本现代风格-个性化设计-卧室效果图及设计说明 1200平大地资本现代风格-个性化设计-卧室效果图及设计说明 1200平大地资本现代风格-个性化设计-卧室效果图及设计说明

小区名称 |大地资本

装修风格 |现代简约

房屋面积 |1200㎡

所属门店 |郑州店

年工作经验
擅长风格:

预约设计师
咨询报价

获取报价
关闭

预约设计师

选择城市

手机号

房屋面积

*请您放心,我们将采取一定的安全措施来保护您的隐私信息

立即预约
免费量房
参观工地
在线客服
咨询报价
置顶