甄选案例

专业大咖设计  海量精美案例任您品鉴

135平阳光城现代风格-干净舒服

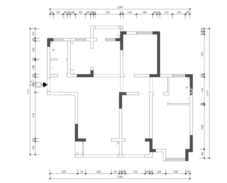
业主需求&原始结构图

空间比较合理,主要考虑公共空间收纳处理,打造简介明快的风格。 优点:南北通透,采光良好 缺点:厨房空间较小,公共部分收纳不足。

135平阳光城现代风格-干净舒服-业主需求&原始结构图

平面设计图及设计说明

优化亮点: 1、入户客卫干湿分离,打掉客卫墙体,增加干区自然光线 2、客卫干湿分区,使用上更为便捷。 3、拆除餐厅和客卧中间墙体制作酒柜。

135平阳光城现代风格-干净舒服-平面设计图及设计说明

客厅效果图及设计说明

客厅电视背景采用储物柜形式,增加客厅储物。背景墙采用柜体内嵌电视,下面悬空,空间更为灵动。

135平阳光城现代风格-干净舒服-客厅效果图及设计说明 135平阳光城现代风格-干净舒服-客厅效果图及设计说明

餐厅效果图及设计说明

餐厅空间采用玻璃柜门,使得餐厅空间增大。

135平阳光城现代风格-干净舒服-餐厅效果图及设计说明

卧室效果图及设计说明

卧室里面同样延续外部整体感觉,利用线条感打造舒适的休息空间。

135平阳光城现代风格-干净舒服-卧室效果图及设计说明

玄关

入户门厅设计通排鞋柜,中间留空放置零碎物品,视觉空间变的不沉闷。

135平阳光城现代风格-干净舒服-玄关

小区名称 |阳光城

装修风格 |现代简约

房屋面积 |135㎡

所属门店 |郑州店

年工作经验
擅长风格:

预约设计师
咨询报价

获取报价
关闭

预约设计师

选择城市

手机号

房屋面积

*请您放心,我们将采取一定的安全措施来保护您的隐私信息

立即预约
免费量房
参观工地
在线客服
咨询报价
置顶