甄选案例

专业大咖设计  海量精美案例任您品鉴

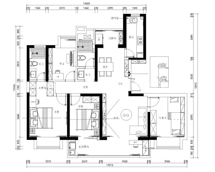
143平壹言如意府现代风格-怡心之居

业主需求&原始结构图

改善型住房,注重品质追求,色调要温馨

143平壹言如意府现代风格-怡心之居-业主需求&原始结构图

平面设计图及设计说明

整体以奶咖色墙面打造温馨舒适的氛围,原木色柜体和格栅呼应整体色调,客餐厅回型灯槽吊顶加上金色不锈钢包边彰显轻奢风,暖灰色地砖同样给人一种温馨的感觉

143平壹言如意府现代风格-怡心之居-平面设计图及设计说明

客厅效果图及设计说明

电视背景墙是以鱼肚白岩板为主,搭配原木色格栅,黑色L型转角柜的跳色更吸引人眼球又不显得突兀,靠沙发一边的阳台处做了一个小型吧台,可以看书喝茶享受安静的时光

143平壹言如意府现代风格-怡心之居-客厅效果图及设计说明 143平壹言如意府现代风格-怡心之居-客厅效果图及设计说明

餐厅效果图及设计说明

餐厅米色木饰面和电视背景墙相连,客餐厅一体提升空间感

143平壹言如意府现代风格-怡心之居-餐厅效果图及设计说明

卧室效果图及设计说明

主卧室柜体和客餐厅色调统一,床头的软硬包和不锈钢线条提升整体的造型感和空间的饱和度

143平壹言如意府现代风格-怡心之居-卧室效果图及设计说明

小区名称 |壹言如意府

装修风格 |现代简约

房屋面积 |143㎡

所属门店 |如皋店

刘月红

3年工作经验
擅长风格:雅致新中、现代

预约设计师
咨询报价

获取报价
关闭

预约设计师

选择城市

手机号

房屋面积

*请您放心,我们将采取一定的安全措施来保护您的隐私信息

立即预约
免费量房
参观工地
在线客服
咨询报价
置顶