甄选案例

专业大咖设计  海量精美案例任您品鉴

500平凤凰里现代风格-惬意高级住宅

业主需求&原始结构图

原始结构图

500平凤凰里现代风格-惬意高级住宅-业主需求&原始结构图

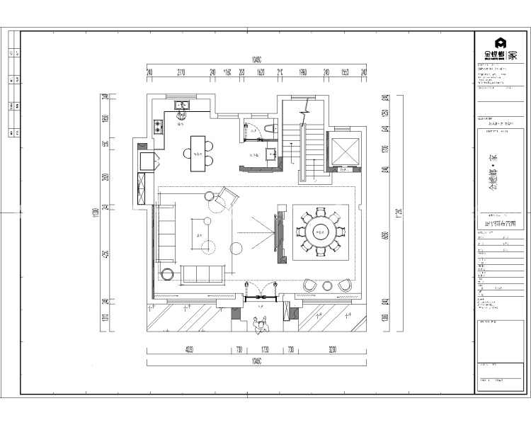
平面设计图及设计说明

平面设计图

500平凤凰里现代风格-惬意高级住宅-平面设计图及设计说明

客厅效果图及设计说明

在整个设计上,我们屏弃多余的装饰,强化空间的艺术境界,通过紧密精巧的布局生化空间的艺术美感。客厅背景墙采用大理石纹作为装饰,整体入门给人一种高级稳重的感觉,大大提升了空间的档次。地面整体选择瓷砖通铺,增大空间延伸感和视觉感。撞色系的布艺沙发搭配着金属质感的茶几,给稳重的空间带来活泼性。

500平凤凰里现代风格-惬意高级住宅-客厅效果图及设计说明 500平凤凰里现代风格-惬意高级住宅-客厅效果图及设计说明 500平凤凰里现代风格-惬意高级住宅-客厅效果图及设计说明 500平凤凰里现代风格-惬意高级住宅-客厅效果图及设计说明 500平凤凰里现代风格-惬意高级住宅-客厅效果图及设计说明

餐厅效果图及设计说明

餐厅区域呼应了客厅背景墙的大理石纹理装饰,而餐厅也正是增加家庭氛围感的核心,整个餐厅通透一览无余,臻品美味即刻可以手到擒来。整体采用了雅致温馨的色彩搭配。白色、米色、灰色,金属装饰互相搭配,简约的图案,细腻的纹理、舒适的布艺等,每一处空间都是在表达一种与世无争的生活方式。

500平凤凰里现代风格-惬意高级住宅-餐厅效果图及设计说明 500平凤凰里现代风格-惬意高级住宅-餐厅效果图及设计说明 500平凤凰里现代风格-惬意高级住宅-餐厅效果图及设计说明

卧室效果图及设计说明

地下室是一个休闲放松的空间,挑高的地下空间设计,

500平凤凰里现代风格-惬意高级住宅-卧室效果图及设计说明 500平凤凰里现代风格-惬意高级住宅-卧室效果图及设计说明 500平凤凰里现代风格-惬意高级住宅-卧室效果图及设计说明 500平凤凰里现代风格-惬意高级住宅-卧室效果图及设计说明 500平凤凰里现代风格-惬意高级住宅-卧室效果图及设计说明 500平凤凰里现代风格-惬意高级住宅-卧室效果图及设计说明

小区名称 |凤凰里

装修风格 |现代简约

房屋面积 |500㎡

所属门店 |安吉店

年工作经验
擅长风格:

预约设计师
咨询报价

获取报价
关闭

预约设计师

选择城市

手机号

房屋面积

*请您放心,我们将采取一定的安全措施来保护您的隐私信息

立即预约
免费量房
参观工地
在线客服
咨询报价
置顶