甄选案例

专业大咖设计  海量精美案例任您品鉴

家有双胞胎该怎么装,来看正确示范

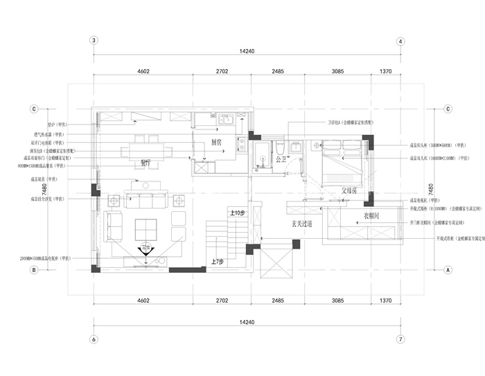
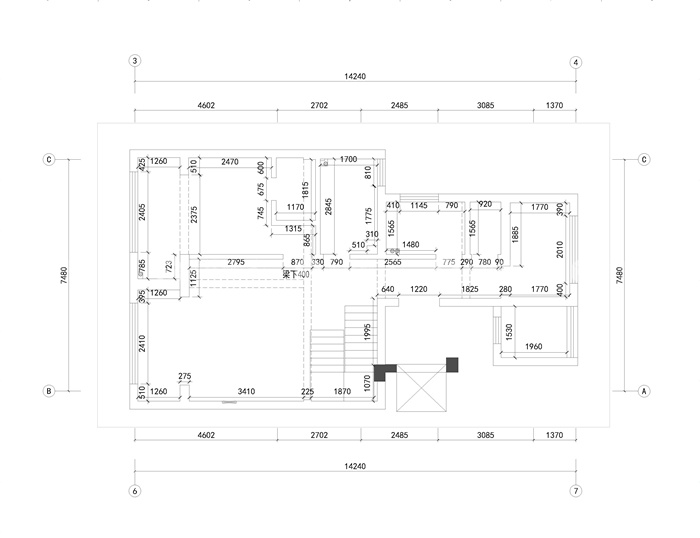
一层原始结构图

【业主需求】:男业主为自由职业者,女业主为老师,有一对双胞胎女儿。男业主喜欢绿色,喜好美式,一层考虑留一个老人房。

家有双胞胎该怎么装,来看正确示范-一层原始结构图

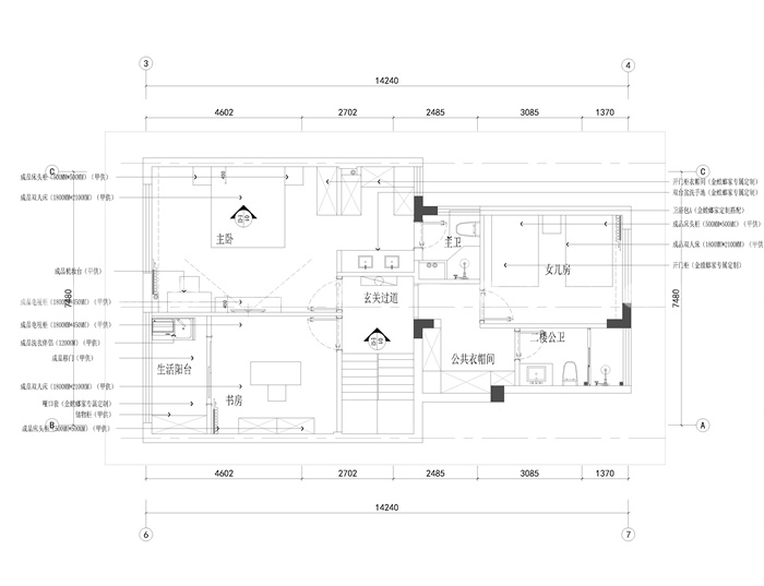
二层原始结构图

家有双胞胎该怎么装,来看正确示范-二层原始结构图

一层平面布置图

家有双胞胎该怎么装,来看正确示范-一层平面布置图

二层平面布置图

家有双胞胎该怎么装,来看正确示范-二层平面布置图

白色为主,墨绿做点缀,简约大气,让传统的美式风格更加符合现代人的居住习惯。

家有双胞胎该怎么装,来看正确示范-

家有双胞胎该怎么装,来看正确示范-

家有双胞胎该怎么装,来看正确示范-

现代化壁炉让餐厅有了悠闲气息,对称性的设计让空间更加规整,视觉效果比较好。

家有双胞胎该怎么装,来看正确示范-

家有双胞胎该怎么装,来看正确示范-

家有双胞胎该怎么装,来看正确示范-

地板与床和衣柜的色调相搭配,让空间整体更协调。一把布艺单人位,让你尽享午后时光。

家有双胞胎该怎么装,来看正确示范-

家有双胞胎该怎么装,来看正确示范-

家有双胞胎该怎么装,来看正确示范-

两张单人床既能保证每个小朋友拥有各自的睡眠空间,又能方便父母同时照看。富有童趣的墙壁柜、小黑板和桌椅让小孩能在这个空间里尽情玩耍。

家有双胞胎该怎么装,来看正确示范-

家有双胞胎该怎么装,来看正确示范-

老人房以简单舒适为主,没有过多的配饰,符合老人房的定位。

家有双胞胎该怎么装,来看正确示范-

家有双胞胎该怎么装,来看正确示范-

书房注重实用性,空白的地方可以留给业主后期自己搭配,按照自己的喜好来布置。

家有双胞胎该怎么装,来看正确示范-

小区名称 |弘阳上园

装修风格 |其他

房屋面积 |180㎡

所属门店 |常熟总店

年工作经验
擅长风格:

预约设计师
咨询报价

获取报价
关闭

预约设计师

选择城市

手机号

房屋面积

*请您放心,我们将采取一定的安全措施来保护您的隐私信息

立即预约
免费量房
参观工地
在线客服
咨询报价
置顶