甄选案例

专业大咖设计  海量精美案例任您品鉴

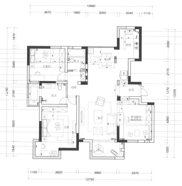
100平天都花园现代风格-生活中的一点小浪漫

业主需求&原始结构图

都市白领 业主婚房 需要点点浪漫

100平天都花园现代风格-生活中的一点小浪漫-业主需求&原始结构图

平面设计图及设计说明

行走于忙碌的世界 回到小家 需要一点生活的小浪漫

100平天都花园现代风格-生活中的一点小浪漫-平面设计图及设计说明

客厅效果图及设计说明

简洁的装修风格 但不简单随意 简洁朴素下隐藏着浪漫的气息

100平天都花园现代风格-生活中的一点小浪漫-客厅效果图及设计说明

餐厅效果图及设计说明

开放式的厨房 附加吧台式餐厅设计 互动更有趣

100平天都花园现代风格-生活中的一点小浪漫-餐厅效果图及设计说明

卧室效果图及设计说明

清新舒适的空间

100平天都花园现代风格-生活中的一点小浪漫-卧室效果图及设计说明 100平天都花园现代风格-生活中的一点小浪漫-卧室效果图及设计说明

小区名称 |天都花园

装修风格 |现代简约

房屋面积 |100㎡

所属门店 |金螳螂家总部店

年工作经验
擅长风格:

预约设计师
咨询报价

获取报价
关闭

预约设计师

选择城市

手机号

房屋面积

*请您放心,我们将采取一定的安全措施来保护您的隐私信息

立即预约
免费量房
参观工地
在线客服
咨询报价
置顶