甄选案例

专业大咖设计  海量精美案例任您品鉴

130平中铁诺德誉园新中式风格-禅意回归

业主需求&原始结构图

业主喜欢禅意与现代的感觉

130平中铁诺德誉园新中式风格-禅意回归-业主需求&原始结构图

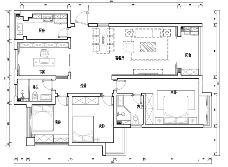
平面设计图及设计说明

130平中铁诺德誉园新中式风格-禅意回归-平面设计图及设计说明 130平中铁诺德誉园新中式风格-禅意回归-平面设计图及设计说明

3D全景图

130平中铁诺德誉园新中式风格-禅意回归-3D全景图图标
130平中铁诺德誉园新中式风格-禅意回归-'全景图封面图'

客厅效果图及设计说明

空间整体色调为白色与木色 色调温润细腻 不失质感 造型与材质的完美调和让整个空间沉稳舒适

130平中铁诺德誉园新中式风格-禅意回归-客厅效果图及设计说明

餐厅效果图及设计说明

动线所及视线都有禅意小景 同时还有轻奢的经典元素 更清新

130平中铁诺德誉园新中式风格-禅意回归-餐厅效果图及设计说明

卧室效果图及设计说明

130平中铁诺德誉园新中式风格-禅意回归-卧室效果图及设计说明 130平中铁诺德誉园新中式风格-禅意回归-卧室效果图及设计说明 130平中铁诺德誉园新中式风格-禅意回归-卧室效果图及设计说明 130平中铁诺德誉园新中式风格-禅意回归-卧室效果图及设计说明

小区名称 |中铁诺德誉园

装修风格 |雅致新中

房屋面积 |130㎡

所属门店 |金螳螂家总部店

年工作经验
擅长风格:

预约设计师
咨询报价

获取报价
关闭

预约设计师

选择城市

手机号

房屋面积

*请您放心,我们将采取一定的安全措施来保护您的隐私信息

立即预约
免费量房
参观工地
在线客服
咨询报价
置顶