甄选案例

专业大咖设计  海量精美案例任您品鉴

90平朗悦公园府北欧风格-清风徐来

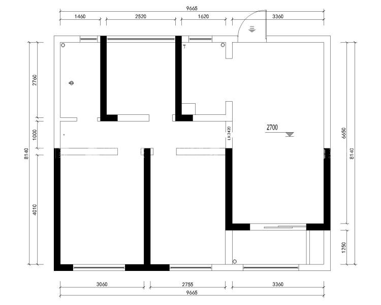
业主需求&原始结构图

本案例为北欧极简风格,本案业主夫妻二人都是90后,男业主在某IT公司上班,女业主开了一家小店,从头到尾小姐姐自己负责家里的装修事宜,先生给与全力支持以及一切听从家里领导的安排。房子是三房,因工作原因希望家里可以偶尔办公解决一些工作,整体来讲还是希望家里的氛围是舒适的,轻松的,平时会在家和好友们聚聚会聊聊天,同时因为房子楼层较低,希望使空间明亮一些。 1、入户鞋柜的位置以及收纳。 2、厨房空间太小,操作台不够用。 3、生活阳台鸡肋,如何合理利用。 4、卫生间面积较小,女业主想要单独淋浴区,最好能干湿分离。 5、三个房间增加一些收纳空间,衣服比较多。

90平朗悦公园府北欧风格-清风徐来-业主需求&原始结构图

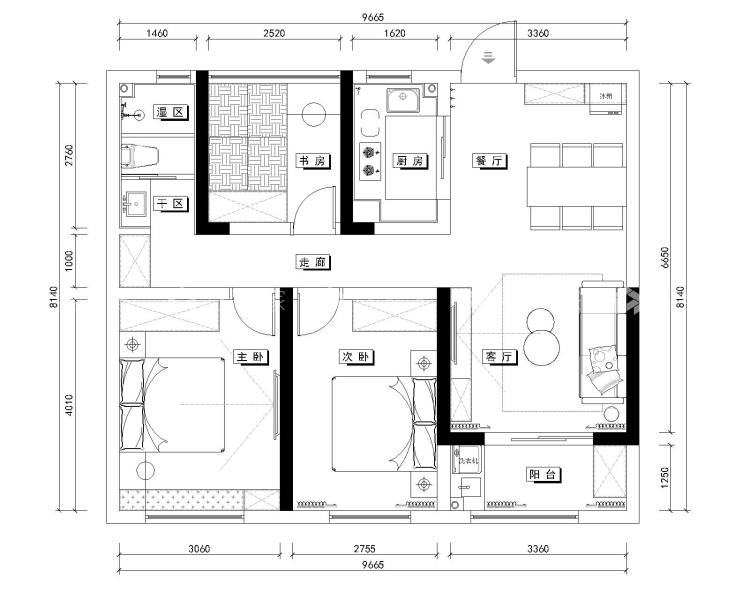
平面设计图及设计说明

1、入户鞋柜考虑放在入户门右手边,靠墙预留冰箱的位置做嵌入式,这样也解决了厨房空间小问题,扩大操作台面。 2、生活阳台一边有下水管的位置,考虑放洗衣机一体柜,洗完衣服直接晾晒比较方便,另一边可以做一组储物柜,一些杂物和换季的鞋子可以收纳到柜子里。 3、卫生间可以做干湿分离,洗漱和上卫生间互不影响。 4、三个房间,其中一个考虑榻榻米房间,书房兼卧室的功能,既可以办公又可以增加收纳空间。

90平朗悦公园府北欧风格-清风徐来-平面设计图及设计说明

客厅效果图及设计说明

整个色调以黑、白、灰为主,电视柜利用木纹与白色肤感柜门结合,显得整洁、大方,浅灰色的沙发搭配原木色边几,自然垂下的盖毯,柔和朦胧的纱帘让空间中的慵懒感倍增。

90平朗悦公园府北欧风格-清风徐来-客厅效果图及设计说明

餐厅效果图及设计说明

次卧床头背景以白色+原木色组合,显得更有层次感,顶面也是原木色吊顶加以装饰,与墙面造型相连,有所呼应,黄铜的灯具让舒适的空间中多了精致的复古。

90平朗悦公园府北欧风格-清风徐来-餐厅效果图及设计说明

卧室效果图及设计说明

主卧室整体色调更加简洁,浅灰的配色,让空间更柔软适合休息。梳妆台白色烤漆配黄铜边框的梳妆镜,白色的小吊灯作为点缀。

90平朗悦公园府北欧风格-清风徐来-卧室效果图及设计说明

小区名称 |朗悦公园府

装修风格 |原木风

房屋面积 |90㎡

所属门店 |郑州店

年工作经验
擅长风格:

预约设计师
咨询报价

获取报价
关闭

预约设计师

选择城市

手机号

房屋面积

*请您放心,我们将采取一定的安全措施来保护您的隐私信息

立即预约
免费量房
参观工地
在线客服
咨询报价
置顶