甄选案例

专业大咖设计  海量精美案例任您品鉴

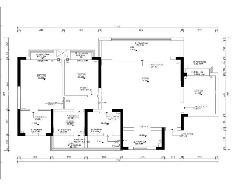
148平领地澜山法式风格

业主需求&原始结构图

此户型客厅是一个横厅,采光很好整个格局比较通透明亮,观景视野也好,唯一不足的就是一个次卧与阳台像连不好处理。 业主是一家三口,夫妻俩和孩子,老人不经常来住,所以把最边上的一个房间划分成了老人房。

148平领地澜山法式风格-业主需求&原始结构图

平面设计图及设计说明

打通了次卧和生活阳台,扩大了次卧的面积,把生活阳台分割,一个横厅的布局把客厅餐厅融合到了一起。

148平领地澜山法式风格-平面设计图及设计说明

3D全景图

148平领地澜山法式风格-3D全景图图标
148平领地澜山法式风格-'全景图封面图'

小区名称 |领地澜山

装修风格 |其他

房屋面积 |148㎡

所属门店 |乐山店

年工作经验
擅长风格:

预约设计师
咨询报价

获取报价
关闭

预约设计师

选择城市

手机号

房屋面积

*请您放心,我们将采取一定的安全措施来保护您的隐私信息

立即预约
免费量房
参观工地
在线客服
咨询报价
置顶