甄选案例

专业大咖设计  海量精美案例任您品鉴

280平百悦新园新中式风格-方寸之间 皆是雅韵

业主需求&原始结构图

原始结构图

280平百悦新园新中式风格-方寸之间 皆是雅韵-业主需求&原始结构图

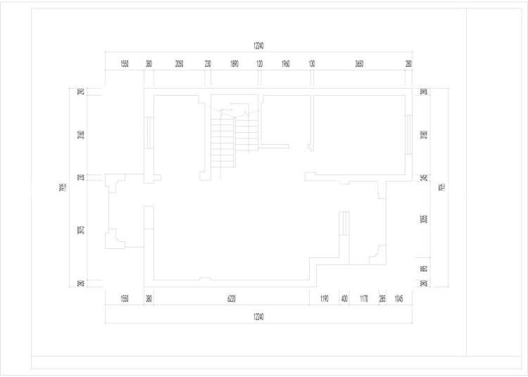
平面设计图及设计说明

平面设计图

280平百悦新园新中式风格-方寸之间 皆是雅韵-平面设计图及设计说明

客厅效果图及设计说明

处繁华而避清幽之境,享禅意以诗入境!整体空间在每一处的踪迹里入画。 客厅区域采用了简单的现代设计,地面通铺瓷砖到阳台,扩大了空间感。将大理石和新中式的家具搭配在一起,中式形制的家具糅合了现代生活,绵绵古意流露于此。 现代感的吊灯在客厅完美的起到了烘托家的温暖。丝丝暖意入予宅。通透的落地窗给整个家带来了通透感,设计师特地在落地窗处增添了“茶道”中国的传统茶艺必不可少!这些中式意象映射着室内的雅韵,一同洗去外界浮躁的一切!

280平百悦新园新中式风格-方寸之间 皆是雅韵-客厅效果图及设计说明 280平百悦新园新中式风格-方寸之间 皆是雅韵-客厅效果图及设计说明 280平百悦新园新中式风格-方寸之间 皆是雅韵-客厅效果图及设计说明 280平百悦新园新中式风格-方寸之间 皆是雅韵-客厅效果图及设计说明

餐厅效果图及设计说明

不得不说开放式的餐区与客厅融为一体,大大增加空间感了。隐藏式无拉手储物柜更好的把物品完美收纳。 黑金走线的桌椅与中式木质纹理的结合,白色百叶窗与光线的映衬,用寂谧烘托出一顿可口的晚餐。

280平百悦新园新中式风格-方寸之间 皆是雅韵-餐厅效果图及设计说明 280平百悦新园新中式风格-方寸之间 皆是雅韵-餐厅效果图及设计说明 280平百悦新园新中式风格-方寸之间 皆是雅韵-餐厅效果图及设计说明 280平百悦新园新中式风格-方寸之间 皆是雅韵-餐厅效果图及设计说明

小区名称 |百悦新园

装修风格 |雅致新中

房屋面积 |280㎡

所属门店 |安吉店

年工作经验
擅长风格:

预约设计师
咨询报价

获取报价
关闭

预约设计师

选择城市

手机号

房屋面积

*请您放心,我们将采取一定的安全措施来保护您的隐私信息

立即预约
免费量房
参观工地
在线客服
咨询报价
置顶