甄选案例

专业大咖设计  海量精美案例任您品鉴

143平旭辉和庭现代风格-琴瑟和谐

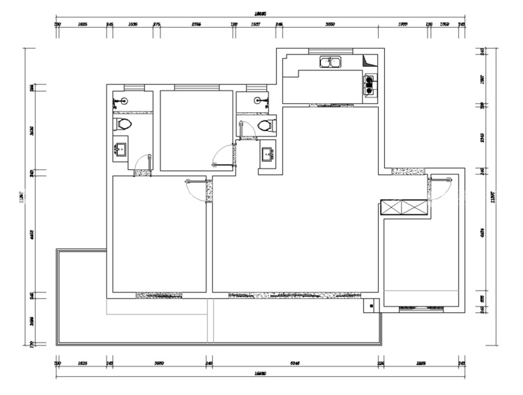
业主需求&原始结构图

三居室的结构,户型方正。

143平旭辉和庭现代风格-琴瑟和谐-业主需求&原始结构图

平面设计图及设计说明

根据基本功能需求主要考虑空间利用,色彩搭配、材质选择、照明等因素。

143平旭辉和庭现代风格-琴瑟和谐-平面设计图及设计说明

客厅效果图及设计说明

主要通过颜色、材质的变化及照明的配合来达到其效果。采用很多灯带效果,让空间更加柔和。

143平旭辉和庭现代风格-琴瑟和谐-客厅效果图及设计说明

餐厅效果图及设计说明

餐厅餐桌椅用了和客厅现代布艺风格搭配的风格,为了更好的体现现代轻奢的风格。

143平旭辉和庭现代风格-琴瑟和谐-餐厅效果图及设计说明

卧室效果图及设计说明

主卧室也是用极为简约的装饰,没有任何多余繁琐的装饰。

143平旭辉和庭现代风格-琴瑟和谐-卧室效果图及设计说明 143平旭辉和庭现代风格-琴瑟和谐-卧室效果图及设计说明

儿童房

营造的是一个以粉色灰色白色为主导的空间,让少女心爆棚的大女儿在此空间,享受到童年的快乐。这种色彩搭配给人温暖和柔软的感觉。空间利用上,最大的可能利用的空间,飘窗也做成了书柜。

143平旭辉和庭现代风格-琴瑟和谐-儿童房

老人房

次卧是给父母和客人临时准备的,过年或者节假日,远在老家的父母亲可能会来短暂居住,色调上用了一个中性色调,功能上满足了基本的储物需求。

143平旭辉和庭现代风格-琴瑟和谐-老人房

小区名称 |旭辉和庭

装修风格 |现代简约

房屋面积 |143㎡

所属门店 |金螳螂家

年工作经验
擅长风格:

预约设计师
咨询报价

获取报价
关闭

预约设计师

选择城市

手机号

房屋面积

*请您放心,我们将采取一定的安全措施来保护您的隐私信息

立即预约
免费量房
参观工地
在线客服
咨询报价
置顶