甄选案例

专业大咖设计  海量精美案例任您品鉴

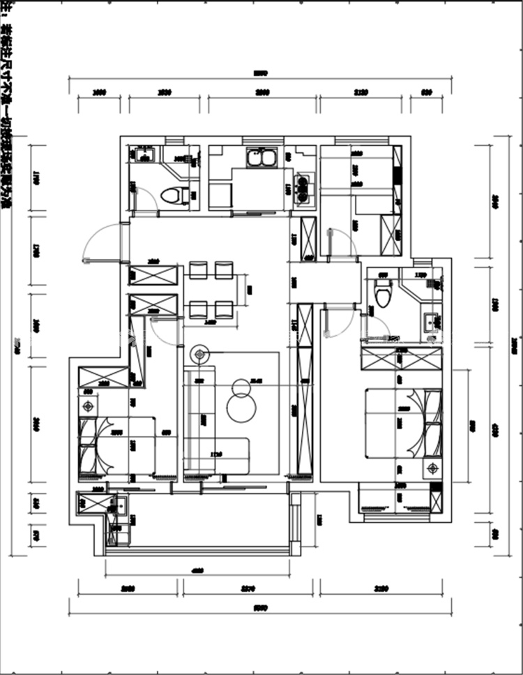
100平东原阅境现代风格-明日之星

业主需求&原始结构图

三居室的结构,户型方正。

100平东原阅境现代风格-明日之星-业主需求&原始结构图

平面设计图及设计说明

根据基本功能需求主要考虑功能性需求,审美一定是与功能结合的,才是最人性化的软装设计。

100平东原阅境现代风格-明日之星-平面设计图及设计说明

客厅效果图及设计说明

主要通过集成墙板和具有现代感的整体电视柜来体现,结合金属色调的灯具,使空间不那么冷,有家的温暖。

100平东原阅境现代风格-明日之星-客厅效果图及设计说明

餐厅效果图及设计说明

餐厅墙面用了浅米灰的墙布,餐桌餐椅用了岩板+实木腿的款式,布料用了棉麻,灯具用了金属+亚克力的材质,定制柜子用了现代家居中常用的深色木纹搭配米灰色哑光平板柜子,这些均为了更好的体现现代风格。

100平东原阅境现代风格-明日之星-餐厅效果图及设计说明

卧室效果图及设计说明

主卧室也是用温柔浪漫为主的橙色,使得空间更加温馨,床用的是一个带有弧度的造型以及米色的墙板背景,橙色色的窗帘相得益彰。原来飘窗的位置砸掉做了梳妆台兼书桌,使空间更好的得到了利用。

100平东原阅境现代风格-明日之星-卧室效果图及设计说明 100平东原阅境现代风格-明日之星-卧室效果图及设计说明

书房

书房做的是全屋定制榻榻米房,有一个转角的书桌,和主人的喜好阅读的喜欢相吻合,要经常使用书桌来完成工作和学习,也使得这个空间的储物得到了最最大的利用。

100平东原阅境现代风格-明日之星-书房 100平东原阅境现代风格-明日之星-书房

卧室

次卧室是全家储物最多的房间,利用了进门地方比较宽敞的优势,也给他做了储物收纳空间,来弥补整个房子储物不足的小缺点。

100平东原阅境现代风格-明日之星-卧室 100平东原阅境现代风格-明日之星-卧室

小区名称 |东原阅境

装修风格 |现代简约

房屋面积 |100㎡

所属门店 |金螳螂家

年工作经验
擅长风格:

预约设计师
咨询报价

获取报价
关闭

预约设计师

选择城市

手机号

房屋面积

*请您放心,我们将采取一定的安全措施来保护您的隐私信息

立即预约
免费量房
参观工地
在线客服
咨询报价
置顶