甄选案例

专业大咖设计  海量精美案例任您品鉴

180平天地源大都会现代风格

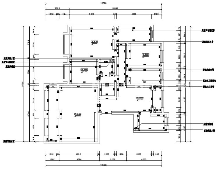
业主需求&原始结构图

本案业主三口之家,根据与业主的沟通交流,决定将本案定为轻奢风格,要年轻时尚,经济实用,要求绿色家居,低碳生活,节能,环保。

180平天地源大都会现代风格-业主需求&原始结构图

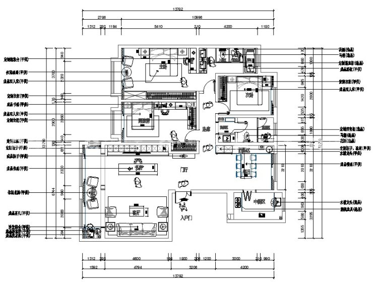
平面设计图及设计说明

本户型轻奢中的”轻“字,就是表达简单,简洁的意思,说直白点,我们就是极简,现在代表的风格有工业风、北欧、现代简约、极简、新中式等,其中工业风为代表的简洁风格,就缺少了奢华的味道,为了增加奢华的味道和质感,增加”奢“的成分,比如线条、金属、家具等,这些都能做到。

180平天地源大都会现代风格-平面设计图及设计说明

客厅效果图及设计说明

轻奢,也是现代轻奢风格,这种简洁主义的风格渗透了简单+奢华。低调奢华风格注重硬装修手法的简洁,但也并不像一般的简约风格那样随意。在“低调奢华风格”的空间里,看似简洁朴素的外表之下却常常折射出一种隐藏着的贵族气质,这种气质大多数通过家具,壁纸,纺织品,皮毛等软装元素而来。硬装修的简洁更有利于衬托出具有品质的家具和软装产品。

180平天地源大都会现代风格-客厅效果图及设计说明

餐厅效果图及设计说明

轻奢是现代风格的代表,为了出众,必须有内涵的历史韵味,加入少少古典元素,是非常有必要的。轻奢,可以看成是现代与古典的融合。追求真正好设计和高品质家具的顾客越来越多,但传统奢侈家具的高价对很多人而言仍旧是奢求,现有的流行时尚家具品牌又无法满足品质和设计的双重需求,此时,“轻奢家具”顺理成章地出现。

180平天地源大都会现代风格-餐厅效果图及设计说明

卧室效果图及设计说明

180平天地源大都会现代风格-卧室效果图及设计说明 180平天地源大都会现代风格-卧室效果图及设计说明

小区名称 |天地源大都会

装修风格 |现代简约

房屋面积 |180㎡

所属门店 |西安雁塔店

年工作经验
擅长风格:

预约设计师
咨询报价

获取报价
关闭

预约设计师

选择城市

手机号

房屋面积

*请您放心,我们将采取一定的安全措施来保护您的隐私信息

立即预约
免费量房
参观工地
在线客服
咨询报价
置顶