甄选案例

专业大咖设计  海量精美案例任您品鉴

80平嘉州长卷现代风格

业主需求&原始结构图

业主一家三口居住,户型较小,两房结构,需要合理布局。

80平嘉州长卷现代风格-业主需求&原始结构图

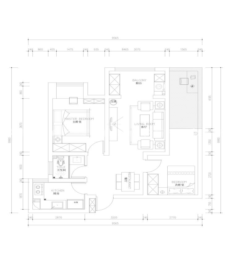
平面设计图及设计说明

户型较小,次卧外面现浇,合理的扩大了空间的使用面积。

80平嘉州长卷现代风格-平面设计图及设计说明

客厅效果图及设计说明

整体色调偏冷,简单的电视背景墙使得空间简约,视觉上不拥挤。

80平嘉州长卷现代风格-客厅效果图及设计说明

餐厅效果图及设计说明

因户型较小,餐厅与客厅相连,更好的合理利用了空间。

80平嘉州长卷现代风格-餐厅效果图及设计说明

卧室效果图及设计说明

整体考虑舒适和实用功能,营造放松愉悦的心情。

80平嘉州长卷现代风格-卧室效果图及设计说明

小区名称 |嘉州长卷

装修风格 |现代简约

房屋面积 |80㎡

所属门店 |乐山店

年工作经验
擅长风格:

预约设计师
咨询报价

获取报价
关闭

预约设计师

选择城市

手机号

房屋面积

*请您放心,我们将采取一定的安全措施来保护您的隐私信息

立即预约
免费量房
参观工地
在线客服
咨询报价
置顶