甄选案例

专业大咖设计  海量精美案例任您品鉴

160平新中式,没见过这么简单的中式

业主需求&原始结构图

客户为一对中年夫妇,从事文化工作,喜爱新中式,但是不想要红木家具为主的传统中式风格。想以现代中式的硬装为主,搭配中式风格的家具元素,体现自己文人的品味

160平新中式,没见过这么简单的中式-业主需求&原始结构图

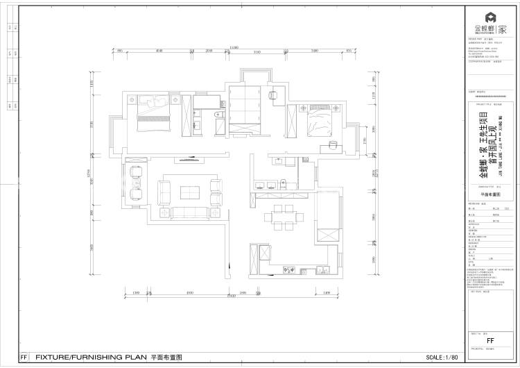
平面设计图及设计说明

平面方案分析 整案以保证三代人生活需求为基本设计基调。厨房,卫生间,玄关均进行了拆改,增加开敞性,方便使用的同时也增加了采光。公卫采用双盆设计,保证客户一家同时使用的需求,在阳台设计了地台,为客户提供小憩饮茶的空间。

160平新中式,没见过这么简单的中式-平面设计图及设计说明

客厅效果图及设计说明

整案以现代中式为基本,以原木色为基础色调,以禅风为设计语言。运用木质,布艺,点缀金属线条,保证了中式的理念也体现了一家人作为中国文人的内秀之气,不浮夸不做作。入户的玄关,客厅的背景墙,吊顶的线条,都作为家中的点缀提升了整家的设计感。客厅阳台的小茶台,作为业主与爱人休憩品茶的小空间,用业主喜爱的小摆件作为点缀,不时地把玩也是一种乐趣。整案表达的是一种文人的雅气与正气,一种不娇柔不嘈杂的空间。一个文人的家中不需要过多的雕梁画柱,但是体现了业主对细节,精致的需求。一个文人的家中才能最能体现中国传统文化,悠远绵延的地方。

160平新中式,没见过这么简单的中式-客厅效果图及设计说明 160平新中式,没见过这么简单的中式-客厅效果图及设计说明 160平新中式,没见过这么简单的中式-客厅效果图及设计说明 160平新中式,没见过这么简单的中式-客厅效果图及设计说明

餐厅效果图及设计说明

餐厅以明式家具为基础,围绕一家人就餐饮茶习惯在背后设计了一组装饰性酒柜提升整体格调。

160平新中式,没见过这么简单的中式-餐厅效果图及设计说明 160平新中式,没见过这么简单的中式-餐厅效果图及设计说明

卧室效果图及设计说明

主卧主人房选用山水壁画提升家里到色彩感,次卧老人房围绕业主老父亲作为文人的喜好展开。

160平新中式,没见过这么简单的中式-卧室效果图及设计说明 160平新中式,没见过这么简单的中式-卧室效果图及设计说明

玄关

玄关简洁明快,是客人到访后进家门的首看亮点,玄关的精巧,在另一个侧面无不体现出主人的生活品味与格调

160平新中式,没见过这么简单的中式-玄关

小区名称 |首开国风上观

装修风格 |雅致新中

房屋面积 |163㎡

所属门店 |金螳螂家

年工作经验
擅长风格:

预约设计师
咨询报价

获取报价
关闭

预约设计师

选择城市

手机号

房屋面积

*请您放心,我们将采取一定的安全措施来保护您的隐私信息

立即预约
免费量房
参观工地
在线客服
咨询报价
置顶