甄选案例

专业大咖设计  海量精美案例任您品鉴

115平君悦湾二期现代风格

业主需求&原始结构图

户型方正,采光通风效果好,生活阳台较小。

115平君悦湾二期现代风格-业主需求&原始结构图

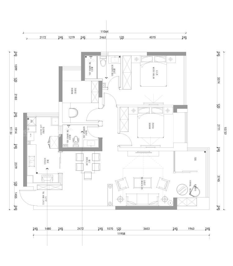
平面设计图及设计说明

打通生活阳台,保留原有功能,厨房更显明亮和宽敞。

115平君悦湾二期现代风格-平面设计图及设计说明

客厅效果图及设计说明

客餐厅叠级边吊+灯带设计,电视背景墙造型较少,整体风格以后期软装来凸显。

115平君悦湾二期现代风格-客厅效果图及设计说明

餐厅效果图及设计说明

餐厅与客厅之间有一个小边机和夹丝玻璃作为隔断,分区明显又不显臃肿。

115平君悦湾二期现代风格-餐厅效果图及设计说明

卧室效果图及设计说明

整体考虑舒适和实用功能,营造放松愉悦的心情。

115平君悦湾二期现代风格-卧室效果图及设计说明

小区名称 |君悦湾二期

装修风格 |现代简约

房屋面积 |115㎡

所属门店 |乐山店

年工作经验
擅长风格:

预约设计师
咨询报价

获取报价
关闭

预约设计师

选择城市

手机号

房屋面积

*请您放心,我们将采取一定的安全措施来保护您的隐私信息

立即预约
免费量房
参观工地
在线客服
咨询报价
置顶