甄选案例

专业大咖设计  海量精美案例任您品鉴

110平君悦湾现代风格

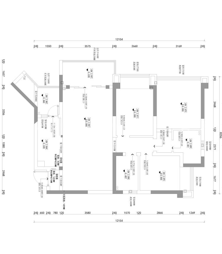
业主需求&原始结构图

采光通风效果好,厨房有点小,异性阳台,面积较大。

110平君悦湾现代风格-业主需求&原始结构图

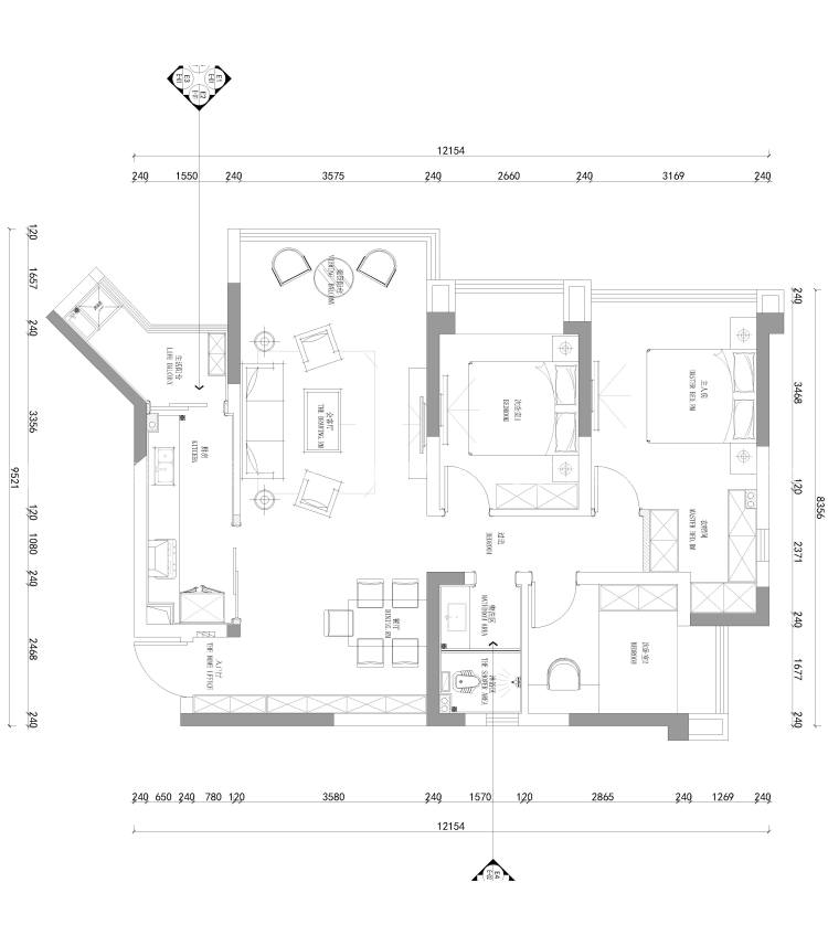
平面设计图及设计说明

三室两卫,客户只保留一个卫生间,保留两个卧室,另一个作为多功能房。

110平君悦湾现代风格-平面设计图及设计说明

客厅效果图及设计说明

现代风格,客餐厅整体叠级边吊+无主灯+灯带设计,既有造型也不显空间压抑。

110平君悦湾现代风格-客厅效果图及设计说明

餐厅效果图及设计说明

入户联排酒柜与鞋柜设计,连贯、节约空间。

110平君悦湾现代风格-餐厅效果图及设计说明

卧室效果图及设计说明

主卧室改了卫生间为衣帽间,整体空间也显得很宽敞,储物空间大。

110平君悦湾现代风格-卧室效果图及设计说明

小区名称 |君悦湾二期

装修风格 |现代简约

房屋面积 |110㎡

所属门店 |乐山店

年工作经验
擅长风格:

预约设计师
咨询报价

获取报价
关闭

预约设计师

选择城市

手机号

房屋面积

*请您放心,我们将采取一定的安全措施来保护您的隐私信息

立即预约
免费量房
参观工地
在线客服
咨询报价
置顶