甄选案例

专业大咖设计  海量精美案例任您品鉴

阳光房、小庭院,真正大气的中式之家

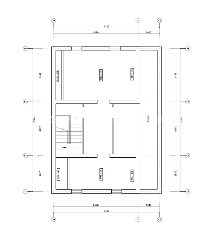
原始结构图

希望家里为陋室的感觉,偏安一隅享受生活。

阳光房、小庭院,真正大气的中式之家-原始结构图 阳光房、小庭院,真正大气的中式之家-原始结构图 阳光房、小庭院,真正大气的中式之家-原始结构图

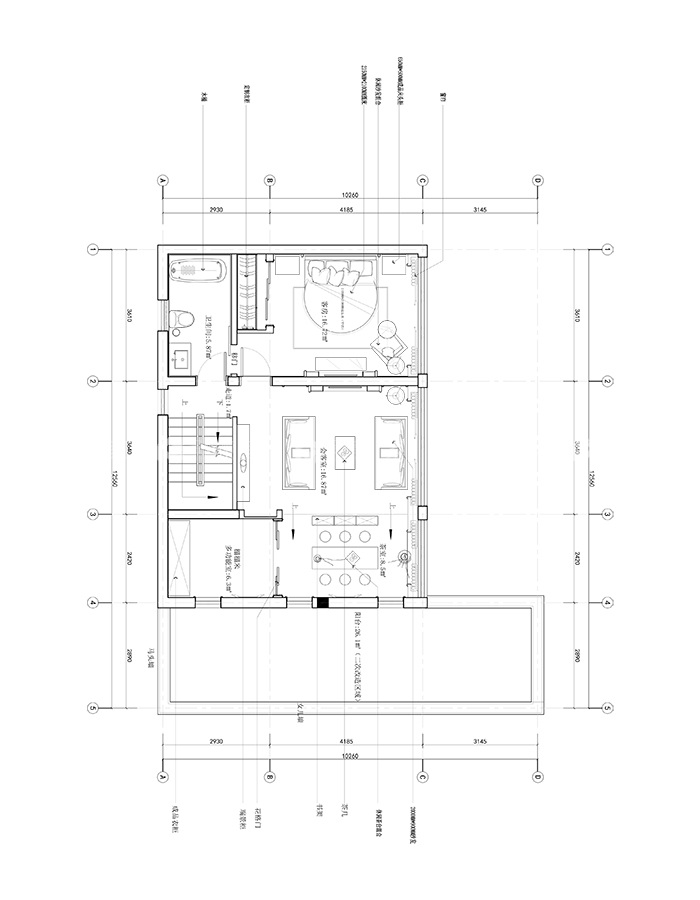
平面布置图

本案以白色为主色调,为整个家铺垫一层优雅的基调,搭配原木材质削减家具沉重感, 勾勒出新中式的端正大气感。

阳光房、小庭院,真正大气的中式之家-平面布置图 阳光房、小庭院,真正大气的中式之家-平面布置图 阳光房、小庭院,真正大气的中式之家-平面布置图

茶室

幽静中带有变化,通透的大窗户收纳每日晨光。

阳光房、小庭院,真正大气的中式之家-茶室

餐厅

地道的中式味道,明亮的主次光源,让人流连忘返回味无穷。

阳光房、小庭院,真正大气的中式之家-餐厅

展厅

展厅放置各类珍藏,中式庭院般的造型门洞给人丰富的遐想空间。

阳光房、小庭院,真正大气的中式之家-展厅

阳光房

阳光房内的日式味道,成为居家一大亮点。

阳光房、小庭院,真正大气的中式之家-阳光房

主卧

主卧呈现完全对称的居室布局,端正上档次。

阳光房、小庭院,真正大气的中式之家-主卧

会客区

主卧室会客区优雅细腻,材质感强烈,花格窗即实现隐私又能分散光线,让空间生动

阳光房、小庭院,真正大气的中式之家-会客区

小区名称 |河东街275号

装修风格 |雅致新中

房屋面积 |200㎡

所属门店 |常熟总店

年工作经验
擅长风格:

预约设计师
咨询报价

获取报价
关闭

预约设计师

选择城市

手机号

房屋面积

*请您放心,我们将采取一定的安全措施来保护您的隐私信息

立即预约
免费量房
参观工地
在线客服
咨询报价
置顶