甄选案例

专业大咖设计  海量精美案例任您品鉴

113平盐务局小区北欧风格-老房改造北欧风

业主需求&原始结构图

业主九零后,喜欢一种随意的,不被拘束的,舒适感强的一种家的感觉,做婚房使用

113平盐务局小区北欧风格-老房改造北欧风-业主需求&原始结构图

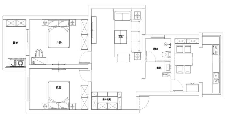
平面设计图及设计说明

本案以蓝灰色为主色调,为整个家铺垫一层优雅的基调,其中搭配白色、浅粉色减去灰色带来的沉重感,使整体的氛围更为明朗欢快,整体设计以软装搭配为主,勾勒出一个家满满的幸福感。

113平盐务局小区北欧风格-老房改造北欧风-平面设计图及设计说明

客厅效果图及设计说明

进门处鞋柜的设计以及步入式衣帽间功能的划分视觉的既视感,家的温馨感由然而生。。。客厅墙面用了灰蓝色乳胶漆冷色系,通过家具跳色搭配衍生出家的舒适感,温馨感,黑白色软装将经典配色运用的淋漓尽致。

113平盐务局小区北欧风格-老房改造北欧风-客厅效果图及设计说明 113平盐务局小区北欧风格-老房改造北欧风-客厅效果图及设计说明

餐厅效果图及设计说明

墙面配饰活跃明快舒适感,灰蓝色的墙面给人明亮干净且不显单调的视觉感。

113平盐务局小区北欧风格-老房改造北欧风-餐厅效果图及设计说明 113平盐务局小区北欧风格-老房改造北欧风-餐厅效果图及设计说明

卧室效果图及设计说明

113平盐务局小区北欧风格-老房改造北欧风-卧室效果图及设计说明

小区名称 |盐务局小区

装修风格 |原木风

房屋面积 |113㎡

所属门店 |连云港店

年工作经验
擅长风格:

预约设计师
咨询报价

获取报价
关闭

预约设计师

选择城市

手机号

房屋面积

*请您放心,我们将采取一定的安全措施来保护您的隐私信息

立即预约
免费量房
参观工地
在线客服
咨询报价
置顶