甄选案例

专业大咖设计  海量精美案例任您品鉴

四川省乐山市市中区时代清江二期

业主需求&原始结构图

户型方正,通风效果好,改动较少。

四川省乐山市市中区时代清江二期-业主需求&原始结构图

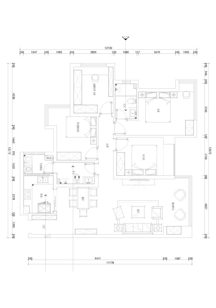
平面设计图及设计说明

保留原有四室,做三个卧室,一个房间作为多功能房,平时作为衣帽间,偶尔可看书等。

四川省乐山市市中区时代清江二期-平面设计图及设计说明

客厅效果图及设计说明

客餐厅贯通,通风和采光效果都好,吊顶用金属条装饰,更时尚。

四川省乐山市市中区时代清江二期-客厅效果图及设计说明

餐厅效果图及设计说明

餐厅设计完全够平时一家人的实用,实用性强。

四川省乐山市市中区时代清江二期-餐厅效果图及设计说明

卧室效果图及设计说明

卧室的设计宽敞明亮、舒适,让人感觉放松。

四川省乐山市市中区时代清江二期-卧室效果图及设计说明

小区名称 |时代清江

装修风格 |现代简约

房屋面积 |110㎡

所属门店 |乐山店

年工作经验
擅长风格:

预约设计师
咨询报价

获取报价
关闭

预约设计师

选择城市

手机号

房屋面积

*请您放心,我们将采取一定的安全措施来保护您的隐私信息

立即预约
免费量房
参观工地
在线客服
咨询报价
置顶