甄选案例

专业大咖设计  海量精美案例任您品鉴

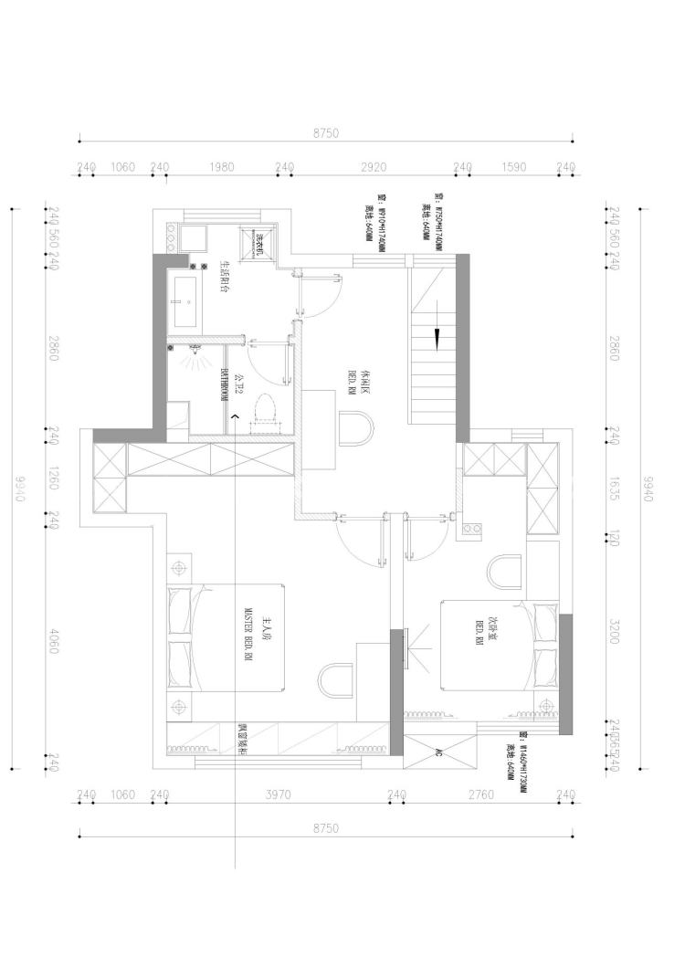
四川省乐山市市中区天空墅

业主需求&原始结构图

业主保留3间卧室,楼上改动较大 ,楼上不要公卫,次卧需要一个衣帽间。

四川省乐山市市中区天空墅-业主需求&原始结构图 四川省乐山市市中区天空墅-业主需求&原始结构图

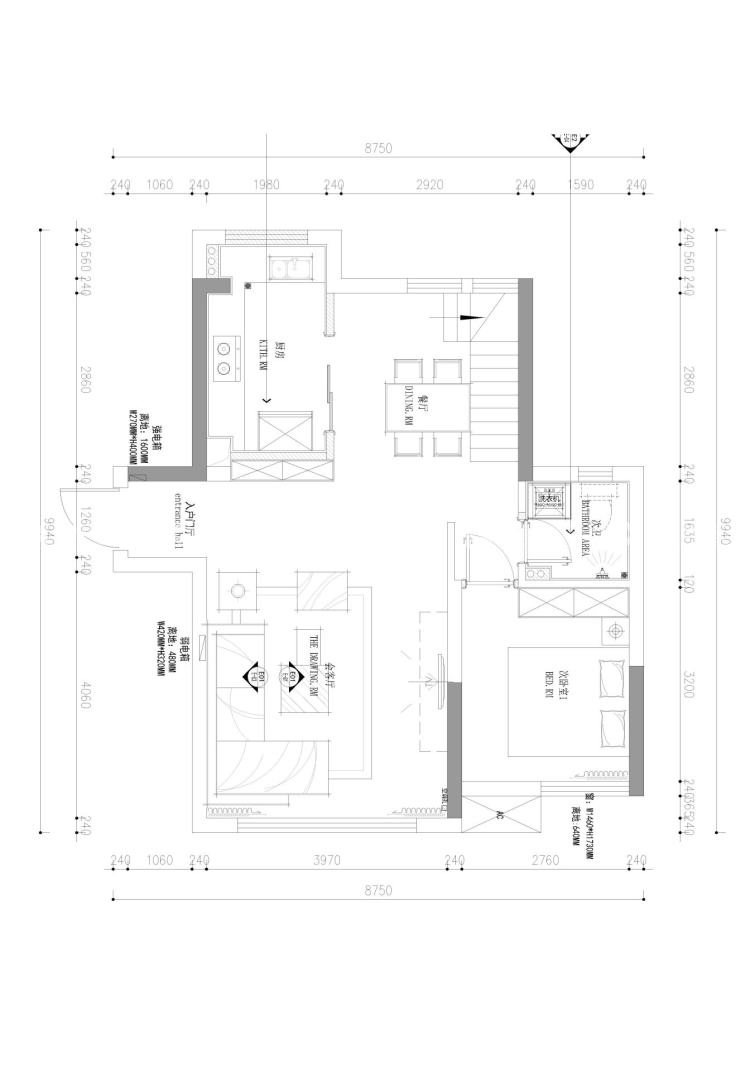
平面设计图及设计说明

根据业主需求,一楼老人房合理布局, 砌厨房外墙做鞋柜,2楼把公卫改成次卧的衣帽间 ,将一间卧室改成书房 ,然后进去生活阳台 ,符合业主生活习惯。

四川省乐山市市中区天空墅-平面设计图及设计说明 四川省乐山市市中区天空墅-平面设计图及设计说明

客厅效果图及设计说明

顶上做了简单的变吊,加上无主灯设计,让整个空间更加简洁大气,木饰面加石材的背景墙让空间延伸且更有质感。

四川省乐山市市中区天空墅-客厅效果图及设计说明

餐厅效果图及设计说明

现代风格的设计,黑白灰为主题,用无主灯设计,让空间简洁、时尚。

四川省乐山市市中区天空墅-餐厅效果图及设计说明

卧室效果图及设计说明

黑白灰加上一些亮色系点缀, 使空间明亮宽敞的同时却不失时尚感。

四川省乐山市市中区天空墅-卧室效果图及设计说明

小区名称 |天空墅

装修风格 |现代简约

房屋面积 |131㎡

所属门店 |乐山店

年工作经验
擅长风格:

预约设计师
咨询报价

获取报价
关闭

预约设计师

选择城市

手机号

房屋面积

*请您放心,我们将采取一定的安全措施来保护您的隐私信息

立即预约
免费量房
参观工地
在线客服
咨询报价
置顶