甄选案例

专业大咖设计  海量精美案例任您品鉴

110㎡北欧混搭自然风小资情调,年轻人的家就要不一样

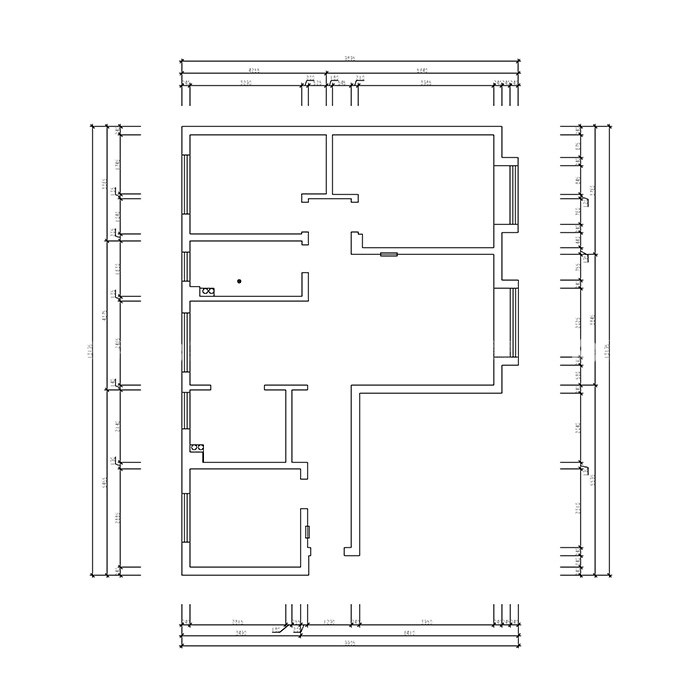
原始户型图

本案例为新房改造,由于户型为南北通透户型,除了主卧室和客厅均在阳面,采光及通风情况比较好,餐厅及主次卧局部空间结构不合理,局部空间利用率不高,收纳空间少。

110㎡北欧混搭自然风小资情调,年轻人的家就要不一样-原始户型图

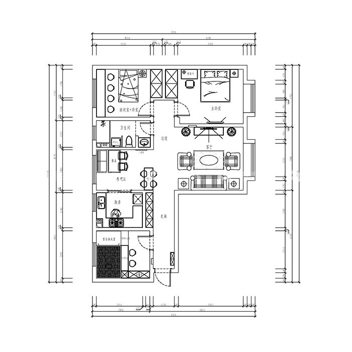
平面布置图

对主、次卧及书房客餐厅等空间进行了合理的改造,从而满足了男主人的学习工作空间,又增加了合理的收纳储物空间。

110㎡北欧混搭自然风小资情调,年轻人的家就要不一样-平面布置图

客餐厅

客厅和餐厅空间是连接在一起的,整个空间都进行了全新的改造,从地面木纹砖,到冷色调的高级灰乳胶漆粉刷后,简洁清新的墙面及顶面,每一处空间都被处分利用。

110㎡北欧混搭自然风小资情调,年轻人的家就要不一样-客餐厅 110㎡北欧混搭自然风小资情调,年轻人的家就要不一样-客餐厅 110㎡北欧混搭自然风小资情调,年轻人的家就要不一样-客餐厅 110㎡北欧混搭自然风小资情调,年轻人的家就要不一样-客餐厅

过道

过道设计大气简洁。

110㎡北欧混搭自然风小资情调,年轻人的家就要不一样-过道

卧室

卧室空间,地面同样使用的是和客餐厅一样的木纹砖,灰颜色的地面、暖黄色的墙面及白色顶面相互分割,使得整个空间不论是色彩的点缀,还是氛围的烘托,都显得恰到好处。

110㎡北欧混搭自然风小资情调,年轻人的家就要不一样-卧室

影音室

体现出屋主平日喜爱边看电影边小酌一杯的浪漫情调。

110㎡北欧混搭自然风小资情调,年轻人的家就要不一样-影音室

游戏室+卧室

略带时尚的设计,彰显出玩游戏的酷感。还可以作为休息的客卧。

110㎡北欧混搭自然风小资情调,年轻人的家就要不一样-游戏室+卧室

厨房

简洁而不失高雅的厨柜,使得整个空间更加充满视觉感。

110㎡北欧混搭自然风小资情调,年轻人的家就要不一样-厨房

卫生间

清爽的设计,为炎炎夏日带来一室清凉!

110㎡北欧混搭自然风小资情调,年轻人的家就要不一样-卫生间

小区名称 |融创中央学府

装修风格 |原木风

房屋面积 |110㎡

所属门店 |金螳螂家

年工作经验
擅长风格:

预约设计师
咨询报价

获取报价
关闭

预约设计师

选择城市

手机号

房屋面积

*请您放心,我们将采取一定的安全措施来保护您的隐私信息

立即预约
免费量房
参观工地
在线客服
咨询报价
置顶