甄选案例

专业大咖设计  海量精美案例任您品鉴

130平现代风~

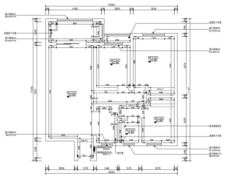
业主需求&原始结构图

户型优点:户型方正,南北通透

130平现代风~-业主需求&原始结构图

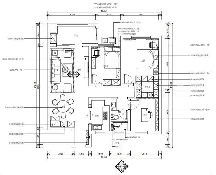
平面设计图及设计说明

户型缺点:空间感不足

130平现代风~-平面设计图及设计说明

客厅效果图及设计说明

第一次见屋主的时候,就发现他是一个不折不扣的咖啡迷,热爱居家生活,对于各种咖啡的种类和做法娓娓道来,喜欢呆在咖啡馆里工作、看书、发呆。“对家的设计就是对生活轮廓的勾画。” 从拿到户型图的那一刻,作为设计师,脑海里就跳出了一个念头:将咖啡作为设计灵感,按照屋主的生活轨迹打造。

130平现代风~-客厅效果图及设计说明

餐厅效果图及设计说明

餐厅的木饰面背景墙,实际上是一面隐藏的收纳空间。略显方正的餐桌椅,带来踏实不拥挤的感官感受。

130平现代风~-餐厅效果图及设计说明

卧室效果图及设计说明

主卧配色上取自咖啡的色彩,更容易让人入眠。到下午的时候,阳光透过来,整个房间显得暖烘烘的,温柔地包裹着居住的人。

130平现代风~-卧室效果图及设计说明

小区名称 |名人国际

装修风格 |现代简约

房屋面积 |130㎡

所属门店 |宿迁店

年工作经验
擅长风格:

预约设计师
咨询报价

获取报价
关闭

预约设计师

选择城市

手机号

房屋面积

*请您放心,我们将采取一定的安全措施来保护您的隐私信息

立即预约
免费量房
参观工地
在线客服
咨询报价
置顶