甄选案例

专业大咖设计  海量精美案例任您品鉴

现代轻奢,简约处透出精致感~

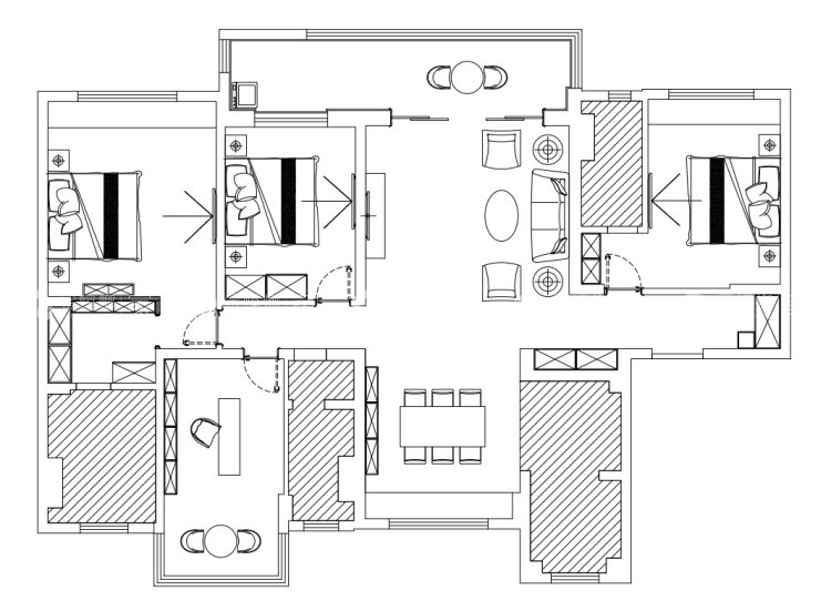
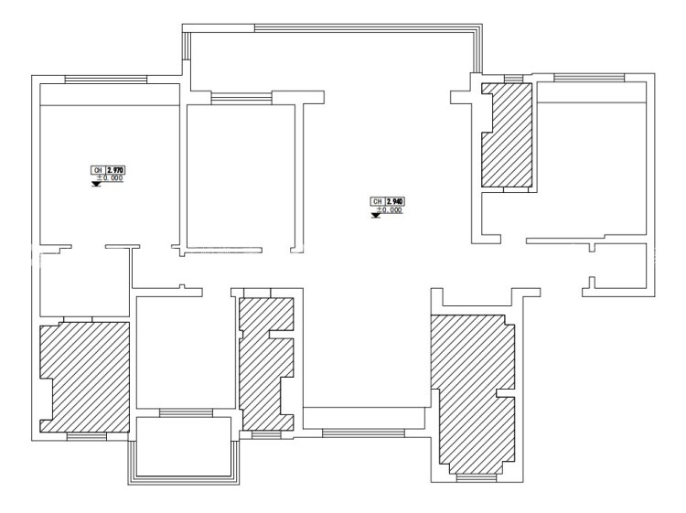
业主需求&原始结构图

户型优点:南北通透 采光较好; 户型缺点:本套案例作为精装修房子,整体施工及设计效果很一般。

现代轻奢,简约处透出精致感~-业主需求&原始结构图

平面设计图及设计说明

业主希望家里呈现现代轻奢效果,储物空间多预留

现代轻奢,简约处透出精致感~-平面设计图及设计说明

客厅效果图及设计说明

在客餐厅空间色彩上,以柔和的米色、咖色打底,搭配深色的家具,营造柔软、温润的现代轻奢风格。

现代轻奢,简约处透出精致感~-客厅效果图及设计说明

餐厅效果图及设计说明

在客餐厅空间色彩上,以柔和的米色、咖色打底,搭配深色的家具,营造柔软、温润的现代轻奢风格。

现代轻奢,简约处透出精致感~-餐厅效果图及设计说明

卧室效果图及设计说明

颇具质感的金属线条,精致了家居格调,勾勒出宁静与安详的意境。

现代轻奢,简约处透出精致感~-卧室效果图及设计说明

小区名称 |翰林阁

装修风格 |现代简约

房屋面积 |180㎡

所属门店 |宿迁店

年工作经验
擅长风格:

预约设计师
咨询报价

获取报价
关闭

预约设计师

选择城市

手机号

房屋面积

*请您放心,我们将采取一定的安全措施来保护您的隐私信息

立即预约
免费量房
参观工地
在线客服
咨询报价
置顶