甄选案例

专业大咖设计  海量精美案例任您品鉴

140㎡高级新中式,有温度的东方美!

业主需求&原始结构图

原始户型南北通透,过长的阳台收到了卧室之后,卧室就会显得采光极佳,空间也特别大,原进门位置设置隔断后改侧边进入公区让客餐厅成一体

140㎡高级新中式,有温度的东方美!-业主需求&原始结构图

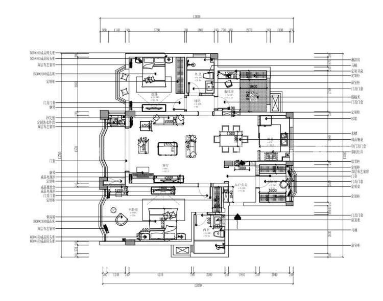
平面设计图及设计说明

本案立足于传统,又施之以创新,经过不断的提炼和丰富后呈现出极为浓郁的东方情调,全屋都都采用喜鹊和梅花来应和主题。

140㎡高级新中式,有温度的东方美!-平面设计图及设计说明

客厅效果图及设计说明

进入客厅,墙布与隔断背景墙勾勒出素雅的基底。红木的沙发赋予空间以中式与雅致的生命力。“有朋自远方来,不亦说乎”的生活意境,坐于其间,燃一片香,沏一杯香茗,对坐案前,或赏书画,或叙旧畅谈,任时间游走,思绪横飞。

140㎡高级新中式,有温度的东方美!-客厅效果图及设计说明 140㎡高级新中式,有温度的东方美!-客厅效果图及设计说明 140㎡高级新中式,有温度的东方美!-客厅效果图及设计说明 140㎡高级新中式,有温度的东方美!-客厅效果图及设计说明

餐厅效果图及设计说明

餐厅与客厅相连,配套的餐桌,以及背后的博古架也能展示一下住人的情趣。

140㎡高级新中式,有温度的东方美!-餐厅效果图及设计说明

卧室效果图及设计说明

主人房位于东南位,主卧运用我们主题的梅花做点缀,再搭配上各种喜鹊,让卧室变的喜气自然,床品的橙色软包与背景墙融合出亦古亦今的空间氛围。落地窗边静谧的一角,散发出清幽静默的气质,椅子上棉麻布艺深浅不一的纹理就像层层叠叠的山峦,给人以一种清雅、淡然的美好。

140㎡高级新中式,有温度的东方美!-卧室效果图及设计说明 140㎡高级新中式,有温度的东方美!-卧室效果图及设计说明 140㎡高级新中式,有温度的东方美!-卧室效果图及设计说明 140㎡高级新中式,有温度的东方美!-卧室效果图及设计说明 140㎡高级新中式,有温度的东方美!-卧室效果图及设计说明 140㎡高级新中式,有温度的东方美!-卧室效果图及设计说明 140㎡高级新中式,有温度的东方美!-卧室效果图及设计说明 140㎡高级新中式,有温度的东方美!-卧室效果图及设计说明

老人房

西面的长辈房,古朴温馨,墙布和窗帘的拼色搭配给你舒适的感觉

140㎡高级新中式,有温度的东方美!-老人房 140㎡高级新中式,有温度的东方美!-老人房 140㎡高级新中式,有温度的东方美!-老人房 140㎡高级新中式,有温度的东方美!-老人房

儿童房

儿童房纯白色调搭配蓝色窗帘,童趣盎然。

140㎡高级新中式,有温度的东方美!-儿童房 140㎡高级新中式,有温度的东方美!-儿童房 140㎡高级新中式,有温度的东方美!-儿童房

卫生间

厨房运用深灰布纹的面板和我们新中式的主题相得益彰。

140㎡高级新中式,有温度的东方美!-卫生间 140㎡高级新中式,有温度的东方美!-卫生间

卫生间

卫生间由于采光都相对较差都采用了浅灰色的瓷砖来搭配,使得风格和采光都达到了预期的效果。

140㎡高级新中式,有温度的东方美!-卫生间

小区名称 |星宝花园

装修风格 |雅致新中

房屋面积 |140㎡

所属门店 |常熟总店

年工作经验
擅长风格:

预约设计师
咨询报价

获取报价
关闭

预约设计师

选择城市

手机号

房屋面积

*请您放心,我们将采取一定的安全措施来保护您的隐私信息

立即预约
免费量房
参观工地
在线客服
咨询报价
置顶