甄选案例

专业大咖设计  海量精美案例任您品鉴

轻奢之家,实用与时髦并存

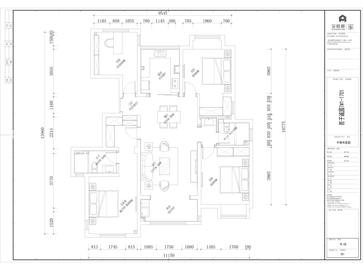
业主需求&原始结构图

业主是五十岁左右的中年人,沉稳踏实不喜张扬

轻奢之家,实用与时髦并存-业主需求&原始结构图

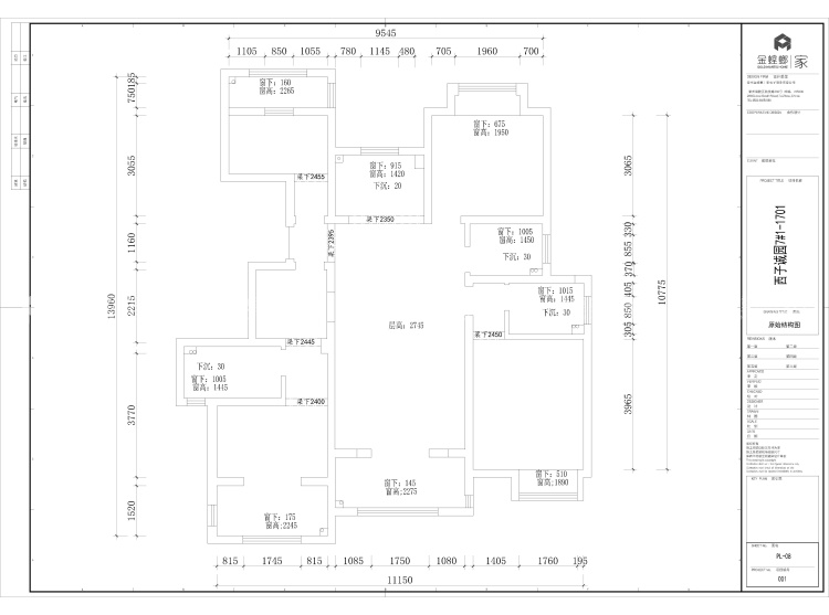
平面设计图及设计说明

原始户型三个卫生间,两个客卫空间狭小,一个改为衣帽间,一个改为干湿分离,空间不浪费

轻奢之家,实用与时髦并存-平面设计图及设计说明

客厅效果图及设计说明

大块面的硬包镶嵌金属线条,给空间提亮,增加些许时尚感,在极简之中返璞归真,邂逅温暖,同时也至精至雅,营造不浮夸的高级感,在低调中无意间凸显精致

轻奢之家,实用与时髦并存-客厅效果图及设计说明

餐厅效果图及设计说明

色彩的选择上,不会选用浓烈的大红大绿,而是偏向于米色、驼色、黑色、灰色、奶咖、象牙白等中性色彩,简单却不缺质感,纯粹却不乏气质。

轻奢之家,实用与时髦并存-餐厅效果图及设计说明

卧室效果图及设计说明

轻奢之家,实用与时髦并存-卧室效果图及设计说明

小区名称 |西子诚园

装修风格 |现代简约

房屋面积 |139㎡

所属门店 |兴化店

年工作经验
擅长风格:

预约设计师
咨询报价

获取报价
关闭

预约设计师

选择城市

手机号

房屋面积

*请您放心,我们将采取一定的安全措施来保护您的隐私信息

立即预约
免费量房
参观工地
在线客服
咨询报价
置顶