甄选案例

专业大咖设计  海量精美案例任您品鉴

133㎡现代实力演绎生活

业主需求&原始结构图

本案业主本案屋主是一对年轻夫妇,喜欢北欧的家具,和风格要有品质感。

133㎡现代实力演绎生活-业主需求&原始结构图

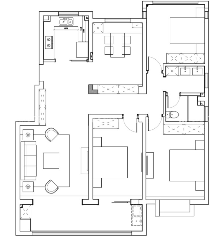
平面设计图及设计说明

原始户型是133平方户型的四室两厅两卫的户型,根据业主要求改为三室两厅一卫,北房间改为餐厅。餐厅墙面改为装饰柜且装饰柜是玻璃金色边框门板,细节带着品质感。

133㎡现代实力演绎生活-平面设计图及设计说明

客厅效果图及设计说明

北欧轻奢风格盛行,因此对于轻奢风格有了更多独到的想法和更加深层次的理解。

133㎡现代实力演绎生活-客厅效果图及设计说明 133㎡现代实力演绎生活-客厅效果图及设计说明

餐厅效果图及设计说明

所谓轻奢,其实是以极致简约的风格为基础,通过一些精致的软装元素来凸显质感,同时又能够兼顾日常生活所需的功能与细节,在追求精致的同时不忘还原生活本真的舒适,这份本真的生活态度,才应该是居家生活应有的纯粹姿态。

133㎡现代实力演绎生活-餐厅效果图及设计说明 133㎡现代实力演绎生活-餐厅效果图及设计说明

小区名称 |星湖文景园

装修风格 |现代简约

房屋面积 |133㎡

所属门店 |兴化店

年工作经验
擅长风格:

预约设计师
咨询报价

获取报价
关闭

预约设计师

选择城市

手机号

房屋面积

*请您放心,我们将采取一定的安全措施来保护您的隐私信息

立即预约
免费量房
参观工地
在线客服
咨询报价
置顶