甄选案例

专业大咖设计  海量精美案例任您品鉴

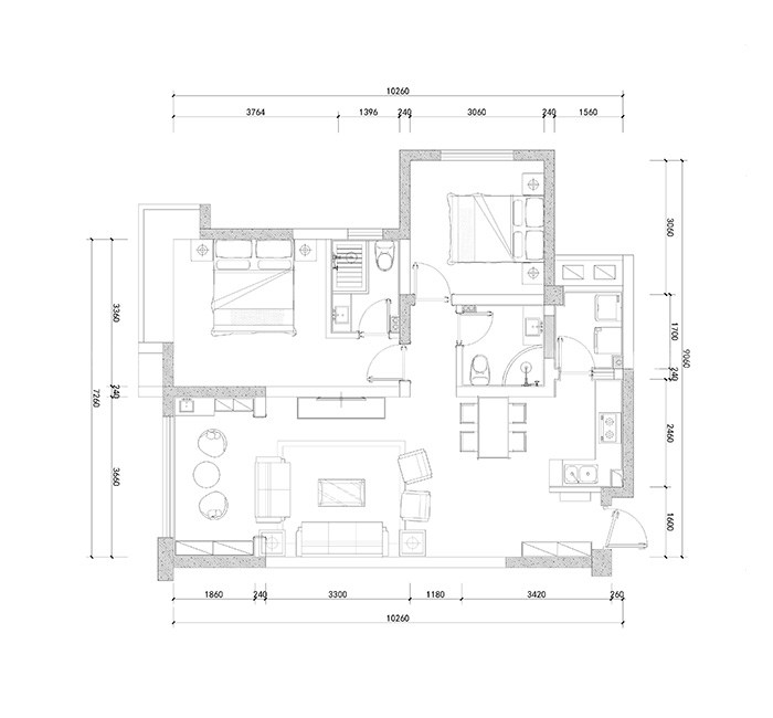
如何让90㎡的空间简洁清秀,宽敞协调?

平面布置图

设计解析 整体布局没有大的改动,遵照业主的想法将客厅与阳台的门取消过后增加其空间的通透性,使得整体客厅的使用面积得到最大化。

如何让90㎡的空间简洁清秀,宽敞协调?-平面布置图

客餐厅

客餐厅整体色调自然舒适,让在外忙碌的人一回家就能感到放松。

如何让90㎡的空间简洁清秀,宽敞协调?-客餐厅

餐厅

餐厅一张褐色木质四人餐桌,墙上的现代蓝色装饰画像是点睛之笔,旁边的餐边柜和餐桌是一个色调,整体统一,佛头和圆形装饰画让人一眼便会感受到中式禅意,宁静平和。

如何让90㎡的空间简洁清秀,宽敞协调?-餐厅

客厅

客厅的方形木质茶几和双人沙发相互呼应,湖蓝色的布艺单人沙发让人感到心情舒畅,电视旁边的玻璃瓶树枝装饰很有特色,几片绿叶也能让人感受到生机。

如何让90㎡的空间简洁清秀,宽敞协调?-客厅

阳台

阳台部分业主想要一个洗手台,所以放了一组装饰性矮柜放上洗手台,墙上的圆镜既体现中式的传统与现代的简洁,美观和实用性两不误。

如何让90㎡的空间简洁清秀,宽敞协调?-阳台

阳台

阳台对边也放置一装饰矮柜,桌上的摆件与墙上的装饰挂件自成一派。

如何让90㎡的空间简洁清秀,宽敞协调?-阳台

主卧

主卧有一大面的飘窗,视线很好,木制床和床头柜搭配墙上颜色绚丽的装饰画整体都是那么的和谐。

如何让90㎡的空间简洁清秀,宽敞协调?-主卧

主卧

床对面有一个矮柜,放置了大幅装饰画,还有些小摆件,铁艺灯既复古也时尚,搭配新中式也很适合。

如何让90㎡的空间简洁清秀,宽敞协调?-主卧

小区名称 |三江阅世集

装修风格 |雅致新中

房屋面积 |90㎡

所属门店 |金螳螂家

年工作经验
擅长风格:

预约设计师
咨询报价

获取报价
关闭

预约设计师

选择城市

手机号

房屋面积

*请您放心,我们将采取一定的安全措施来保护您的隐私信息

立即预约
免费量房
参观工地
在线客服
咨询报价
置顶