甄选案例

专业大咖设计  海量精美案例任您品鉴

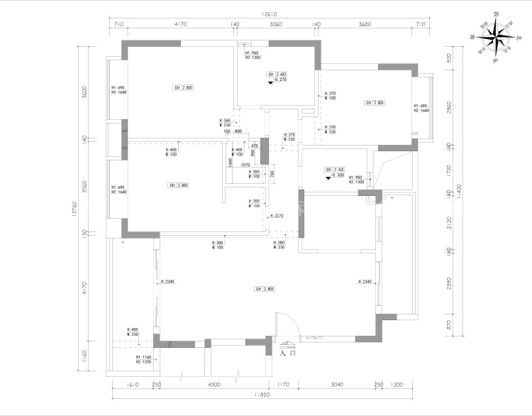
142平方现代温馨之家

业主需求&原始结构图

业主喜欢现代简约加入北欧的元素,喜欢哑光纯白的瓷砖,长辈同住,1个男孩6岁,希望收纳空间多。

142平方现代温馨之家-业主需求&原始结构图

平面设计图及设计说明

本案整体色调以白色和浅木色为主,融入北欧的元素,简约温馨又不失时尚,纯白六角砖和九宫格白色瓷砖,开放式厨房,尽现小资情调。

142平方现代温馨之家-平面设计图及设计说明

客厅效果图及设计说明

为增加收纳空间,弱化电视机,电视背景一整面墙书柜加收纳装饰柜,木色和白色及橙色撞色,年轻时尚。

142平方现代温馨之家-客厅效果图及设计说明

餐厅效果图及设计说明

开放式厨房,哑光纯白吧台,厨房墙身九宫格纯白砖,干净利落.

142平方现代温馨之家-餐厅效果图及设计说明

卧室效果图及设计说明

主人房:飘窗台兼有品茶和阅读功能,整个卧室墙面用上下分色,顶上加入不锈钢,层次感超强。

142平方现代温馨之家-卧室效果图及设计说明

儿童房

男孩房:6岁小男孩,有自己独立的学习空间,床头背景用蓝色3D壁画装饰。

142平方现代温馨之家-儿童房

老人房

长辈房:干净整洁,以收纳为主,L型长衣柜,满足长辈日常放置衣物的需求。

142平方现代温馨之家-老人房

卫生间

主卫:深灰色地砖搭配纯白六角砖,跳色分明,木色浴室柜让空间不会太冰冷,简约秀气的浴缸。

142平方现代温馨之家-卫生间

小区名称 |山海郡

装修风格 |现代简约

房屋面积 |142㎡

所属门店 |金螳螂家

阳林

4年工作经验
擅长风格:雅致新中、美式、现代

预约设计师
咨询报价

获取报价
关闭

预约设计师

选择城市

手机号

房屋面积

*请您放心,我们将采取一定的安全措施来保护您的隐私信息

立即预约
免费量房
参观工地
在线客服
咨询报价
置顶