甄选案例

专业大咖设计  海量精美案例任您品鉴

睡在这么美的新中式卧室里,高调优雅~

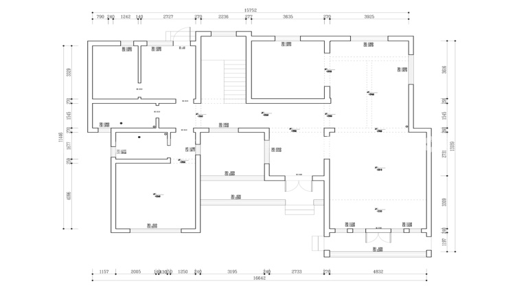
业主需求&原始结构图

该案例建筑面积280平方米,卧室都配有独立卫生间区域,整体动静明确。

睡在这么美的新中式卧室里,高调优雅~-业主需求&原始结构图 睡在这么美的新中式卧室里,高调优雅~-业主需求&原始结构图

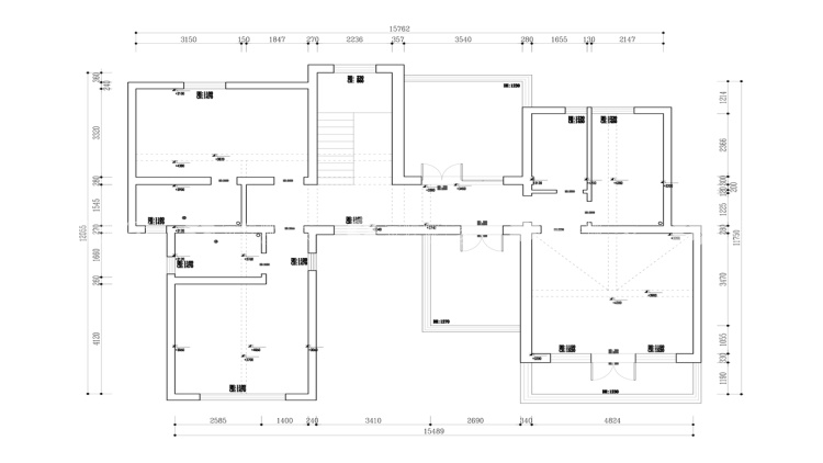
平面设计图及设计说明

每个空间都不用做太多改动,客卫做成干湿分离。

睡在这么美的新中式卧室里,高调优雅~-平面设计图及设计说明 睡在这么美的新中式卧室里,高调优雅~-平面设计图及设计说明

客厅效果图及设计说明

客厅电视背景的瓷砖与沙发背景的亚麻呈现出硬质与软质的对比,现代与传统的对比,虽然有对比,单两者又相互包容使得整个空间相当的融洽

睡在这么美的新中式卧室里,高调优雅~-客厅效果图及设计说明

餐厅效果图及设计说明

圆形的吊顶和方形的大理石纹面相呼应,做到天圆地方,黑白配色的家具显得端庄干净,墙饰简洁不复杂,整个空间做到沉稳大气。

睡在这么美的新中式卧室里,高调优雅~-餐厅效果图及设计说明

卧室效果图及设计说明

在配饰的选择方面更为简洁,少了许多奢华的装饰,饰以精巧的灯具和雅致的挂画,使整个居室在浓浓古韵中渗透了几许现代气息。

睡在这么美的新中式卧室里,高调优雅~-卧室效果图及设计说明 睡在这么美的新中式卧室里,高调优雅~-卧室效果图及设计说明 睡在这么美的新中式卧室里,高调优雅~-卧室效果图及设计说明

其他空间

影音室没有做太大空间,虚光灯带设计能满足基本的照明需要,深色的地毯配上浅色的墙板形成鲜明对比。

睡在这么美的新中式卧室里,高调优雅~-其他空间

小区名称 |瑞园

装修风格 |雅致新中

房屋面积 |280㎡

所属门店 |金螳螂家

年工作经验
擅长风格:

预约设计师
咨询报价

获取报价
关闭

预约设计师

选择城市

手机号

房屋面积

*请您放心,我们将采取一定的安全措施来保护您的隐私信息

立即预约
免费量房
参观工地
在线客服
咨询报价
置顶