甄选案例

专业大咖设计  海量精美案例任您品鉴

用心生活,用心品味!

业主需求&原始结构图

户型方正南北通透,一楼带院子,客厅与餐厅空间紧凑,入户位置与玄关不协调,总体户型偏好。

用心生活,用心品味!-业主需求&原始结构图 用心生活,用心品味!-业主需求&原始结构图 用心生活,用心品味!-业主需求&原始结构图

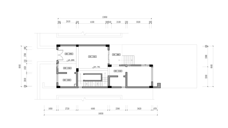
平面设计图及设计说明

左右两边分别为外卫 空间和入户门厅空间,两个功能区完全分开,互不干扰。

用心生活,用心品味!-平面设计图及设计说明 用心生活,用心品味!-平面设计图及设计说明 用心生活,用心品味!-平面设计图及设计说明

客厅效果图及设计说明

于风格形塑上,用材用色柔和素雅,白净空间搭佐木质语汇,简单明亮无过多缀饰,以求机能合并却依然拥有单纯简约的空间本质。

用心生活,用心品味!-客厅效果图及设计说明

餐厅效果图及设计说明

将浅色系的自然木质感衬托展显出来,那一丝丝自然最原始的风味, 呈现静谧的空间氛围,与日光简约明亮的温暖色系交融,匀净美好。

用心生活,用心品味!-餐厅效果图及设计说明

卧室效果图及设计说明

卧室整体风格色调与客厅亦相辅相成,减去家具的棱角,更显圆润平和。

用心生活,用心品味!-卧室效果图及设计说明

厨房

房改变门的位置和墙面位置,形成了入户的玄关区,也增加了厨房的使用面积

用心生活,用心品味!-厨房

卫生间

皆为开放式,增加卧室的整体通透性

用心生活,用心品味!-卫生间

玄关

入户之后就是两侧连绵的收纳柜,白色的柜体将空间打开。业主爱好收纳,囤积物品塞满柜子带来了满满的安全感,指引着家的所在。

用心生活,用心品味!-玄关

小区名称 |生态岛花园

装修风格 |现代简约

房屋面积 |300㎡

所属门店 |金螳螂家

年工作经验
擅长风格:

预约设计师
咨询报价

获取报价
关闭

预约设计师

选择城市

手机号

房屋面积

*请您放心,我们将采取一定的安全措施来保护您的隐私信息

立即预约
免费量房
参观工地
在线客服
咨询报价
置顶