甄选案例

专业大咖设计  海量精美案例任您品鉴

280㎡现代风,被称赞浪漫又实用

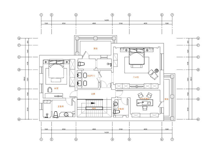
原始结构图

体现时代特征为主,没有过分的装饰,一切从功能出发,讲究造型比例适度、空间结构图明确美观,强调外观的明快、简洁。

280㎡现代风,被称赞浪漫又实用-原始结构图 280㎡现代风,被称赞浪漫又实用-原始结构图 280㎡现代风,被称赞浪漫又实用-原始结构图

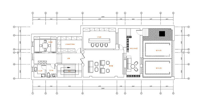
平面布置图

本案简洁和实用是现代风格的基本特点,适度的装饰不缺乏时代气息,使人在空间得到精神和身体的放松,体现现代生活快节奏、简约和实用,但又富有朝气的生活气息。简约风格不仅注重居室的实用性,而且还体现出了现代社会生活的精致与个性,符合现代人的生活品位。

280㎡现代风,被称赞浪漫又实用-平面布置图 280㎡现代风,被称赞浪漫又实用-平面布置图 280㎡现代风,被称赞浪漫又实用-平面布置图

客厅

在功能方面,客厅是主人品味的象征,体现了主人品格,地位,也是交友娱乐的场合,电视背景墙采用石膏板做的四个几何造型,既简单又大方,再加上些许黄色点缀(属暖色调),配上顶部照下来的灯光,整个电视背景墙把客厅提升起来。沙发背景墙只做了简单的处理,用细木工板贴上黑色的亚克力板,黑白色调将经典配色运用的淋漓尽致。

280㎡现代风,被称赞浪漫又实用-客厅 280㎡现代风,被称赞浪漫又实用-客厅

厨房餐厅

厨房餐厅是家居生活的心脏,不仅要美观,更重要的实用性,整体性。灯光很重要既不能太强又不能太弱,灯光则以温馨和暖的黄色为基调,顶部做了简单的吊顶。墙面贴了局部壁纸,在厨房的墙面上作了一个台面,用作早餐台可以摆放一些饰品,可以增加餐厅的情调。

280㎡现代风,被称赞浪漫又实用-厨房餐厅

书房

现代风格线条柔美雅致且遒劲而富于节奏感,整个立体形式都与有条不紊的、有节奏的曲线融为一体。大量使用铁制构件,将玻璃、瓷砖等新工艺,以及铁艺制品、陶艺制品等综合运用于室内。注意室内外沟通,竭力给室内装饰艺术引入新意。

280㎡现代风,被称赞浪漫又实用-书房

客厅

几何线条修饰,色彩明快跳跃,外立面简洁流畅,以波浪、架廊式挑板或装饰线、带、块等异型屋顶为特征,立面立体层次感较强,外飘窗台外挑阳台或内置阳台,合理运用色块色带处理。

280㎡现代风,被称赞浪漫又实用-客厅 280㎡现代风,被称赞浪漫又实用-客厅

卧室

在家具配置上,白亮光系列家具,独特的光泽使家具倍感时尚,具有舒适与美观并存的享受。在配饰上,延续了黑白灰的主色调,以简洁的造型、完美的细节,营造出时尚前卫的感觉。人们在这日趋繁忙的生活中,渴望得到一种能彻底放松、以简洁和纯净来调节转换精神的空间,这是人们在互补意识支配下,所产生的亟欲摆脱繁琐、复杂、追求简单和自然的心理。

280㎡现代风,被称赞浪漫又实用-卧室

选用爵士黑白石材相衬托,充分利用了房体的高度,营建了视觉上高敞宽广的效果。吊顶只简略做了一个直线外型,突显简练流通的规划性。

280㎡现代风,被称赞浪漫又实用-

小区名称 |御翠湾

装修风格 |现代简约

房屋面积 |280㎡

所属门店 |长春店

年工作经验
擅长风格:

预约设计师
咨询报价

获取报价
关闭

预约设计师

选择城市

手机号

房屋面积

*请您放心,我们将采取一定的安全措施来保护您的隐私信息

立即预约
免费量房
参观工地
在线客服
咨询报价
置顶