甄选案例

专业大咖设计  海量精美案例任您品鉴

华丽而不张扬,典雅而不失奢华

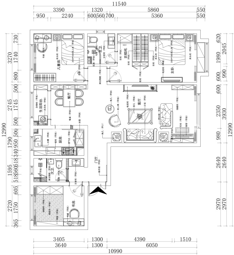
业主需求&原始结构图

业主非常年轻时尚,以清新明亮的色调为主空间动线也更为人性化和合理化

华丽而不张扬,典雅而不失奢华-业主需求&原始结构图

平面设计图及设计说明

为了追求真实而不失精致的生活,我抛弃了西式的繁复华丽,将浪漫风情和当代生活的需求相结合,力求细节处将独到的高贵优雅诠释得淋漓尽致。

华丽而不张扬,典雅而不失奢华-平面设计图及设计说明

客厅效果图及设计说明

华丽而不张扬,典雅而不失奢华。亮白色柔和纯净,使家具和装饰成为视觉焦点。为空间增添暖意的同时也多了几分细腻精致,在丰富空间视觉的同时,展现了美式的独特之处

华丽而不张扬,典雅而不失奢华-客厅效果图及设计说明

餐厅效果图及设计说明

带有欧式特色的家具摒弃了洛可可主义的奢华复杂,以柔顺的线条勾勒,将迷人而勾人的风情展现得恰到好处

华丽而不张扬,典雅而不失奢华-餐厅效果图及设计说明

卧室效果图及设计说明

以深咖作为背景色,搭配简单大方的高靠背,营造了静谧恬淡的氛围,让人沉醉其中无法自拔

华丽而不张扬,典雅而不失奢华-卧室效果图及设计说明

小区名称 |中铁逸园

装修风格 |原木风

房屋面积 |138㎡

所属门店 |西安雁塔店

年工作经验
擅长风格:

预约设计师
咨询报价

获取报价
关闭

预约设计师

选择城市

手机号

房屋面积

*请您放心,我们将采取一定的安全措施来保护您的隐私信息

立即预约
免费量房
参观工地
在线客服
咨询报价
置顶