甄选案例

专业大咖设计  海量精美案例任您品鉴

135平现代风格-灰色打造的简约空间层次感

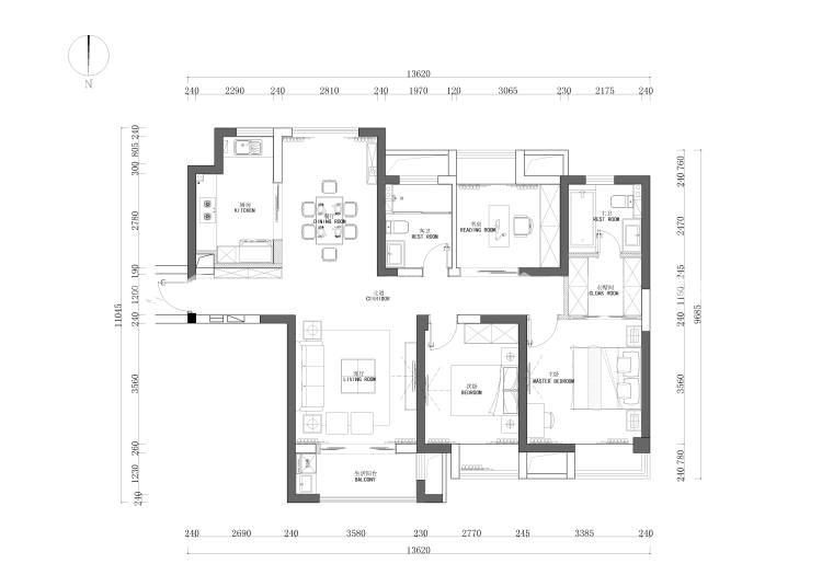
业主需求&原始结构图

本案业主是一对年轻夫妻,两人都喜现代简约风格,家中不想要太多复杂的造型。女业主是一位老师,因此需要一间独立书房以便在家中批改作业及备课。目前二人没有孩子,但需留出一间房间以后作为儿童房。

135平现代风格-灰色打造的简约空间层次感-业主需求&原始结构图

平面设计图及设计说明

户型本身比较标准,南北通透,空间方正,但进门处正对主卧房门,因此设计时将主卧房门改变方向,规避了此问题。原本的餐厅、厨房并不是很大,整体规划后将餐厅和北阳台打通,厨房与设备平台打通,打造出更加开阔舒适的空间。房间需求上尊重业主需求设置了书房与儿童房。

135平现代风格-灰色打造的简约空间层次感-平面设计图及设计说明

客厅效果图及设计说明

家中墙面为浅灰色乳胶漆,为了突出电视电视背景墙,采用两根黑色不锈钢线条作为分界,线条中间的部分使用深灰色,以达到有层次感而又不累赘的效果

135平现代风格-灰色打造的简约空间层次感-客厅效果图及设计说明

餐厅效果图及设计说明

餐厅与阳台打通之后空间开阔了许多,以原有梁为分界分别吊顶,本身阳台的水管藏进了柜子当中,保证美观的同时又增加了储物空间。

135平现代风格-灰色打造的简约空间层次感-餐厅效果图及设计说明

卧室效果图及设计说明

本方案将主卧的布局重新规划,改造成了集卧室、衣帽间、卫生间三大空间的舒适套房。同时保留了原有飘窗,可坐在上面看书、喝茶,十分惬意。风格上与客餐厅统一,灰色墙搭配业主喜欢的挂画,整体简约大气。

135平现代风格-灰色打造的简约空间层次感-卧室效果图及设计说明

卧室

次卧规划为儿童房,因为目前业主还没有孩子,几年内还是充当客房的作用,所以房间风格还是与整体风格统一,灰色的空间中加入橙色元素,起到提亮作用。

135平现代风格-灰色打造的简约空间层次感-卧室

小区名称 |天誉生活广场

装修风格 |现代简约

房屋面积 |135㎡

所属门店 |金螳螂家总部店

年工作经验
擅长风格:

预约设计师
咨询报价

获取报价
关闭

预约设计师

选择城市

手机号

房屋面积

*请您放心,我们将采取一定的安全措施来保护您的隐私信息

立即预约
免费量房
参观工地
在线客服
咨询报价
置顶