甄选案例

专业大咖设计  海量精美案例任您品鉴

喜欢不浮夸的美式风格?这款你一定要看

原始结构图

业主需求:希望家里为美式风格,有四个房间,有鞋房,房间以浅色为主。

喜欢不浮夸的美式风格?这款你一定要看-原始结构图

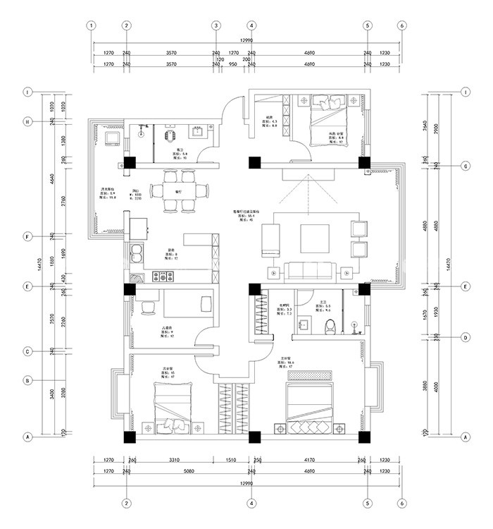
平面布置图

设计理念:本案以灰色为主色调,为整个家铺垫一层优雅的基调,又搭配米灰色带来的稳重感,使得氛围更为轻快,整体设计以软装搭配为主,勾勒出精致与轻奢的质感。

喜欢不浮夸的美式风格?这款你一定要看-平面布置图

使过道变得宽敞明亮,增加行进之中的乐趣,又能很好的连接两个空间,这是设计所要达到的目的。

喜欢不浮夸的美式风格?这款你一定要看-

客厅墙面用了米灰色进口都芳漆与白色造型结合,衍生出薄雾般的轻柔感,暖色软装与背景造型的搭配营造出温馨浪漫的小资情怀。

喜欢不浮夸的美式风格?这款你一定要看-

原餐厅部分没有墙体采用酒柜进行分区实现了适用且美观的半敞开厨房,早餐台使空间意境十足用餐时间都变得美妙起来。

喜欢不浮夸的美式风格?这款你一定要看-

主卧大片飘窗是理想的生活,优雅低调的灰色在这里便是对空间主人性格的最佳描述。

喜欢不浮夸的美式风格?这款你一定要看-

小区名称 |珠江源小区

装修风格 |其他

房屋面积 |167㎡

所属门店 |曲靖店

年工作经验
擅长风格:

预约设计师
咨询报价

获取报价
关闭

预约设计师

选择城市

手机号

房屋面积

*请您放心,我们将采取一定的安全措施来保护您的隐私信息

立即预约
免费量房
参观工地
在线客服
咨询报价
置顶