甄选案例

专业大咖设计  海量精美案例任您品鉴

悠然谧静,自在城中

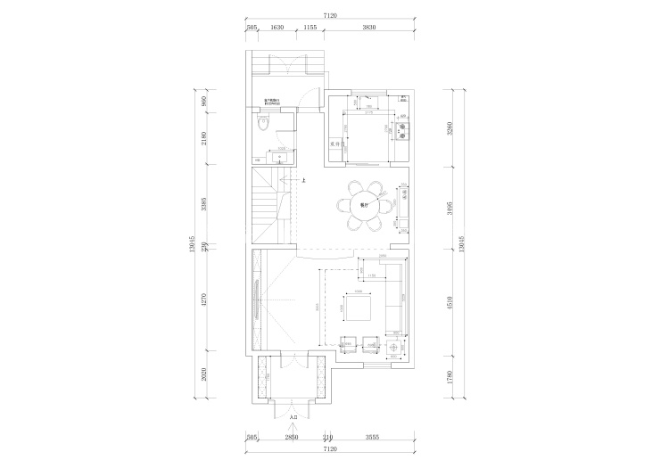
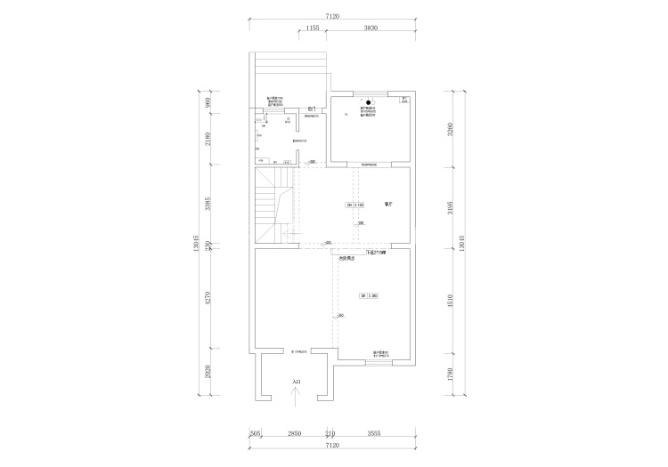
业主需求&原始结构图

年轻夫妇,干净利落,需求明确。工作生活、玩耍、休息各为一层

悠然谧静,自在城中-业主需求&原始结构图 悠然谧静,自在城中-业主需求&原始结构图 悠然谧静,自在城中-业主需求&原始结构图

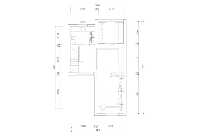
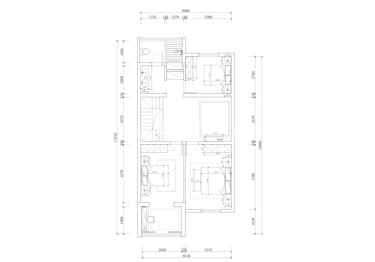
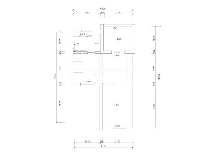
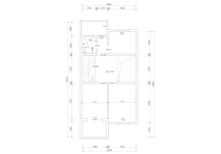
平面设计图及设计说明

一楼保留原有的结构,只是在前后门厅做好收纳增加生活秩序;二楼静区,一家三口的睡眠休息层,卫浴空间扩大增加生活品质。三楼为家政亲子玩耍区,满足收纳,更多是灵活处理。

悠然谧静,自在城中-平面设计图及设计说明 悠然谧静,自在城中-平面设计图及设计说明 悠然谧静,自在城中-平面设计图及设计说明

客厅效果图及设计说明

客厅简洁大气,色调统一,灯光静谧,主要是在材质上要求更多的品质和细节,简约而舒适

悠然谧静,自在城中-客厅效果图及设计说明 悠然谧静,自在城中-客厅效果图及设计说明

餐厅效果图及设计说明

专注于宁静深邃的内心世界,不拘泥于对华丽外表的追求,不管是三口一餐还是朋友聚会,都有生活的炽热

悠然谧静,自在城中-餐厅效果图及设计说明

卧室效果图及设计说明

摒弃喧嚣,摒弃纷扰,让时光静下来,生活慢下来,会发现有时候生活不需要太多的言语,彼此相对无言或者三言两语便已足够感知真情。

悠然谧静,自在城中-卧室效果图及设计说明

小区名称 |澜泊湾

装修风格 |现代简约

房屋面积 |280㎡

所属门店 |临沂店

年工作经验
擅长风格:

预约设计师
咨询报价

获取报价
关闭

预约设计师

选择城市

手机号

房屋面积

*请您放心,我们将采取一定的安全措施来保护您的隐私信息

立即预约
免费量房
参观工地
在线客服
咨询报价
置顶