甄选案例

专业大咖设计  海量精美案例任您品鉴

自然而惬意,是享受时光的最好方式

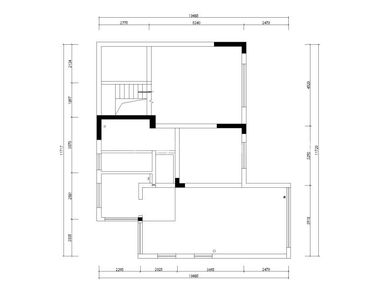
业主需求&原始结构图

本案例是一套单层挑高住宅,业主是一名服装店的CEO,具有前瞻性的审美意识,设计之初并未提具体要求,简简单单就好。

自然而惬意,是享受时光的最好方式-业主需求&原始结构图 自然而惬意,是享受时光的最好方式-业主需求&原始结构图

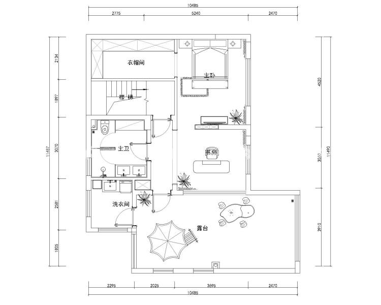
平面设计图及设计说明

大量的原木材质的运用,配合浅灰色的墙面,空间营造出来最质朴的温馨感。顶面是干净的白色,配上黑色亚光的射灯给空间增添了一抹时尚的色彩。除特殊背景墙面外墙面没有什么特殊的处理,以最基本的墙面漆配上具有不同格调的颜色,使空间温馨丰富。

自然而惬意,是享受时光的最好方式-平面设计图及设计说明 自然而惬意,是享受时光的最好方式-平面设计图及设计说明

客厅效果图及设计说明

一楼为客厅和公共的休息区,北欧风里舒适的质感相搭配,以壁炉为原型的背景墙装饰,连排的书架扩大了居家存储空间。

自然而惬意,是享受时光的最好方式-客厅效果图及设计说明 自然而惬意,是享受时光的最好方式-客厅效果图及设计说明

餐厅效果图及设计说明

开放式的厨房,中心放置餐桌椅,整体运用木质主材,自然而惬意,烹饪和享受美食,是享受时光的最好方式。

自然而惬意,是享受时光的最好方式-餐厅效果图及设计说明

卧室效果图及设计说明

主卧室的主色调则是干净又神秘的棕灰色调,非常适合休息睡觉的氛围。

自然而惬意,是享受时光的最好方式-卧室效果图及设计说明

小区名称 |锦绣龙城

装修风格 |原木风

房屋面积 |224㎡

所属门店 |宜宾店

年工作经验
擅长风格:

预约设计师
咨询报价

获取报价
关闭

预约设计师

选择城市

手机号

房屋面积

*请您放心,我们将采取一定的安全措施来保护您的隐私信息

立即预约
免费量房
参观工地
在线客服
咨询报价
置顶