甄选案例

专业大咖设计  海量精美案例任您品鉴

浅灰色色调配鱼骨拼贴木地板,更具时尚感

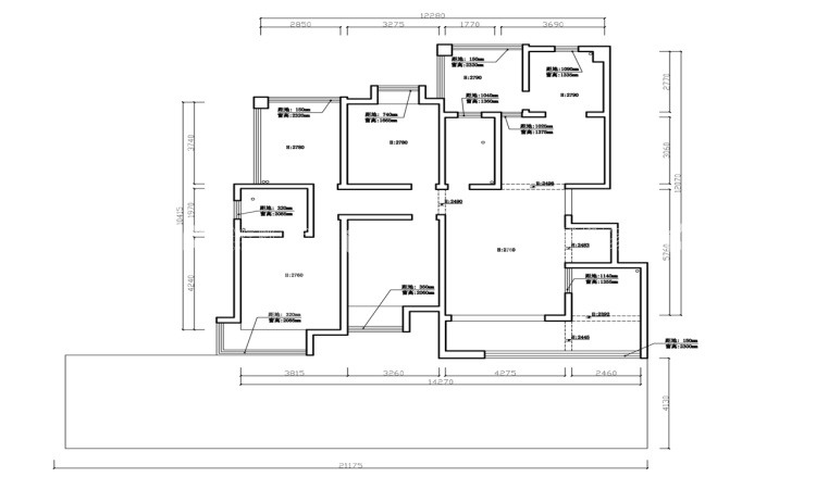
业主需求&原始结构图

户型南北通透,阳台比较大,一楼带院子,四房面积偏小。

浅灰色色调配鱼骨拼贴木地板,更具时尚感-业主需求&原始结构图

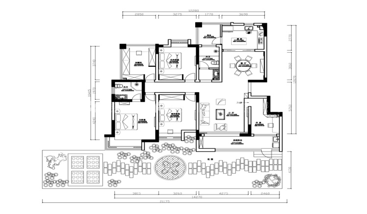
平面设计图及设计说明

厨房扩大了使用空间,中间做了一个操作台。

浅灰色色调配鱼骨拼贴木地板,更具时尚感-平面设计图及设计说明

客厅效果图及设计说明

墙面为淡黄色的乳胶漆,电视背景与书房做半敞开式空间,增加了空间的通透性。

浅灰色色调配鱼骨拼贴木地板,更具时尚感-客厅效果图及设计说明 浅灰色色调配鱼骨拼贴木地板,更具时尚感-客厅效果图及设计说明

餐厅效果图及设计说明

背景为木地板鱼骨拼贴装饰,两边为浅咖色的硬包,配上时尚的方管型灯饰,一切看起来毫无违和感。

浅灰色色调配鱼骨拼贴木地板,更具时尚感-餐厅效果图及设计说明

卧室效果图及设计说明

整体色调为浅灰色,背景搭配来作为跳跃色,更加的时尚。

浅灰色色调配鱼骨拼贴木地板,更具时尚感-卧室效果图及设计说明

儿童房

黄色的窗帘与蓝色的床作为鲜明的对比色,整个空间简洁大方,没有过多的装饰。

浅灰色色调配鱼骨拼贴木地板,更具时尚感-儿童房

卫生间

地面为仿木地板砖鱼骨拼贴,墙面是白色的小方砖,拉伸空间感,显得卫生间比较洁净明亮。

浅灰色色调配鱼骨拼贴木地板,更具时尚感-卫生间

小区名称 |香城颐园

装修风格 |现代简约

房屋面积 |158㎡

所属门店 |金螳螂家

年工作经验
擅长风格:

预约设计师
咨询报价

获取报价
关闭

预约设计师

选择城市

手机号

房屋面积

*请您放心,我们将采取一定的安全措施来保护您的隐私信息

立即预约
免费量房
参观工地
在线客服
咨询报价
置顶