甄选案例

专业大咖设计  海量精美案例任您品鉴

这个日式原木风案例,甩出MUJI好几条街!

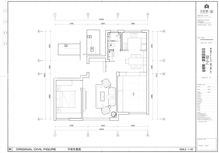
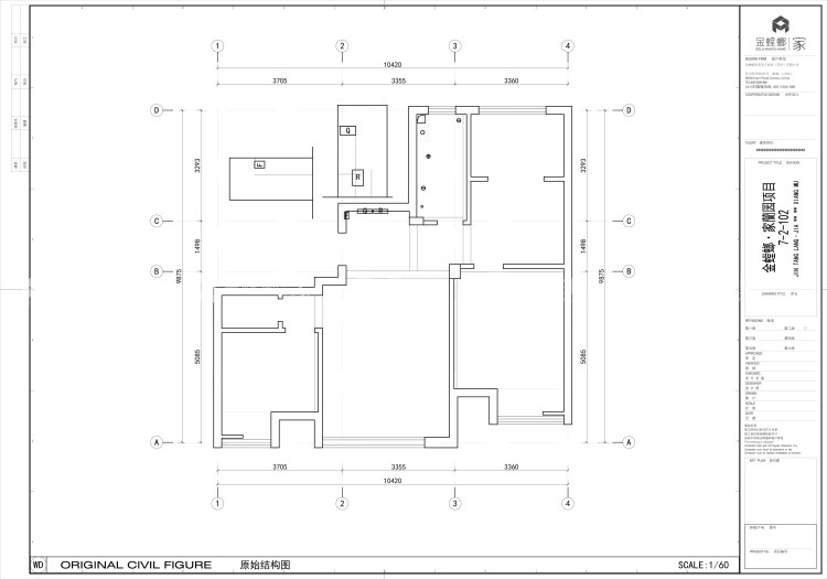
业主需求&原始结构图

业主喜欢日式风格,喜欢榻榻米的收纳功能,觉得家里面收纳必须得多。

这个日式原木风案例,甩出MUJI好几条街!-业主需求&原始结构图

平面设计图及设计说明

日式风格又称和风、和式风格,是来源于日本的装修和装饰风格,是东方风格中独树一帜的代表。以淡雅节制、深邃禅意著称。日式风格大量运用自然界的材质,擅长表现素材的独特肌理和原色。空间意识极强,形成"小、精、巧"的模式,营造出闲适写意、悠然自得的生活境界。明治维新后,吸收西方的建筑特点,形成了"和洋并用"的现代日式风格

这个日式原木风案例,甩出MUJI好几条街!-平面设计图及设计说明

客厅效果图及设计说明

日式风格极为适合小户型,可以最大程度上利用空间。比如可以将电视背景墙同时设计为是一堵收纳墙,简约低调、却能容大

这个日式原木风案例,甩出MUJI好几条街!-客厅效果图及设计说明

餐厅效果图及设计说明

传统的日式家具以其清新自然、简洁的独特品味,形成了独特的家具风格

这个日式原木风案例,甩出MUJI好几条街!-餐厅效果图及设计说明

卧室效果图及设计说明

这种风格注重与大自然融为一体,选用材料上追求自然质感,最喜欢用的是木材和织物,散发着木香的榻榻米,粗糙质感的地毯……

这个日式原木风案例,甩出MUJI好几条街!-卧室效果图及设计说明

小区名称 |绿城籣园

装修风格 |禅意日式

房屋面积 |96㎡

所属门店 |金螳螂家

年工作经验
擅长风格:

预约设计师
咨询报价

获取报价
关闭

预约设计师

选择城市

手机号

房屋面积

*请您放心,我们将采取一定的安全措施来保护您的隐私信息

立即预约
免费量房
参观工地
在线客服
咨询报价
置顶