甄选案例

专业大咖设计  海量精美案例任您品鉴

别墅 没有一定的高度不适合如此低调的家装

业主需求&原始结构图

本次业主对次别墅为改善长久住房,业主居住人口6人,男业主为私企老板,女业主为家庭主妇;对本次房型装修要求美感、使用间的结合,凸显生活色彩的文化品质。

别墅 没有一定的高度不适合如此低调的家装-业主需求&原始结构图 别墅 没有一定的高度不适合如此低调的家装-业主需求&原始结构图 别墅 没有一定的高度不适合如此低调的家装-业主需求&原始结构图

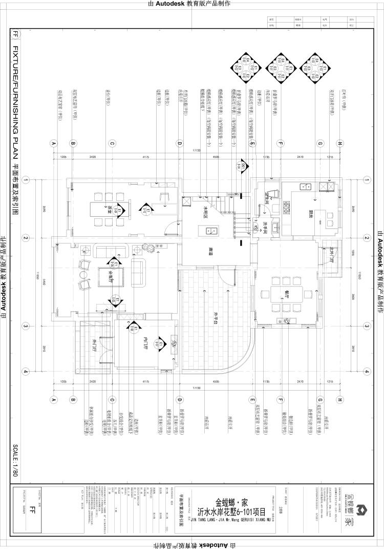
平面设计图及设计说明

本案以气质灰咖和永远都不会过时的大地色为主色调,搭配高级色彩里最洋气的珍珠灰色给人好似开阔的大地的感觉,注入浓郁感的朱砂红色,在安静中增加一种跳跃。 佛教文化中,把朱砂红色视为生活和永恒的颜色。以朱砂红色作为空间辅助色,绝对是一抹让人惊艳到骨子里的热烈。

别墅 没有一定的高度不适合如此低调的家装-平面设计图及设计说明 别墅 没有一定的高度不适合如此低调的家装-平面设计图及设计说明 别墅 没有一定的高度不适合如此低调的家装-平面设计图及设计说明

客厅效果图及设计说明

一层玄关墙用以黄色点缀,灯光照在上面,有些威严之气,加以回子纹形感,寓意平安吉祥。 一层客厅 蹿堂过廊,登台入室阳光透过薄纱潜入,在仪式感的循序渐进中展开关于空间的风雅画卷。落地玻璃窗,设计采用山水元素以及水墨趣味,精致老物件和茶歇带来时空的宁静与恬静,空间内外的人如同时空交互出入在古今。 很好的诠释了中式元素。条案和边柜上的雕塑摆件,也极大的发挥了朱砂红的作用,不突兀却很醒目。

别墅 没有一定的高度不适合如此低调的家装-客厅效果图及设计说明 别墅 没有一定的高度不适合如此低调的家装-客厅效果图及设计说明 别墅 没有一定的高度不适合如此低调的家装-客厅效果图及设计说明

餐厅效果图及设计说明

厨房和餐厅与客厅想通,餐厅光线宽广,吃饭的时候亦能享受阳光照进餐厅的那份温暖。同时也都放置了松树摆件,倒是可以体会“处处松木郁盛”的悠然自得。

别墅 没有一定的高度不适合如此低调的家装-餐厅效果图及设计说明 别墅 没有一定的高度不适合如此低调的家装-餐厅效果图及设计说明

卧室效果图及设计说明

三层主卧室空间如同笔墨的气,挥手行墨以大写意手法勾勒空间格调。顶面形式使空间更显中式大宅气质,刺绣床品布艺组合,诉说着主人细致儒雅的个性。 文雅大气的墙面硬包,点缀以极致东方红的饰品,不喧哗而独具格调。墙面线条简练利落,保持大面积玻璃窗,强化了场所的穿透感,接受阳光更为纯粹的洗礼。

别墅 没有一定的高度不适合如此低调的家装-卧室效果图及设计说明

其他空间

茶室台具笔墨纹理的单椅,木质拼接的茶几构造,搭配水纹般柔和的地毯,色彩跳跃的布艺软装从家庭厅蜿蜒至品茶区,可谓到处皆意境,随时有物华,为空间增添耐人寻味的艺术内涵。让人着实想起聚会笑语欢声,闲坐谧静轻风,陶情遣兴,旷怀达观。

别墅 没有一定的高度不适合如此低调的家装-其他空间

小区名称 |水岸花墅

装修风格 |雅致新中

房屋面积 |362㎡

所属门店 |临沂店

年工作经验
擅长风格:

预约设计师
咨询报价

获取报价
关闭

预约设计师

选择城市

手机号

房屋面积

*请您放心,我们将采取一定的安全措施来保护您的隐私信息

立即预约
免费量房
参观工地
在线客服
咨询报价
置顶