甄选案例

专业大咖设计  海量精美案例任您品鉴

103平芳华里现代风

业主需求&原始结构图

户型方正 客厅面积大厨房长度 较长 但是卧室还是较小

103平芳华里现代风-业主需求&原始结构图

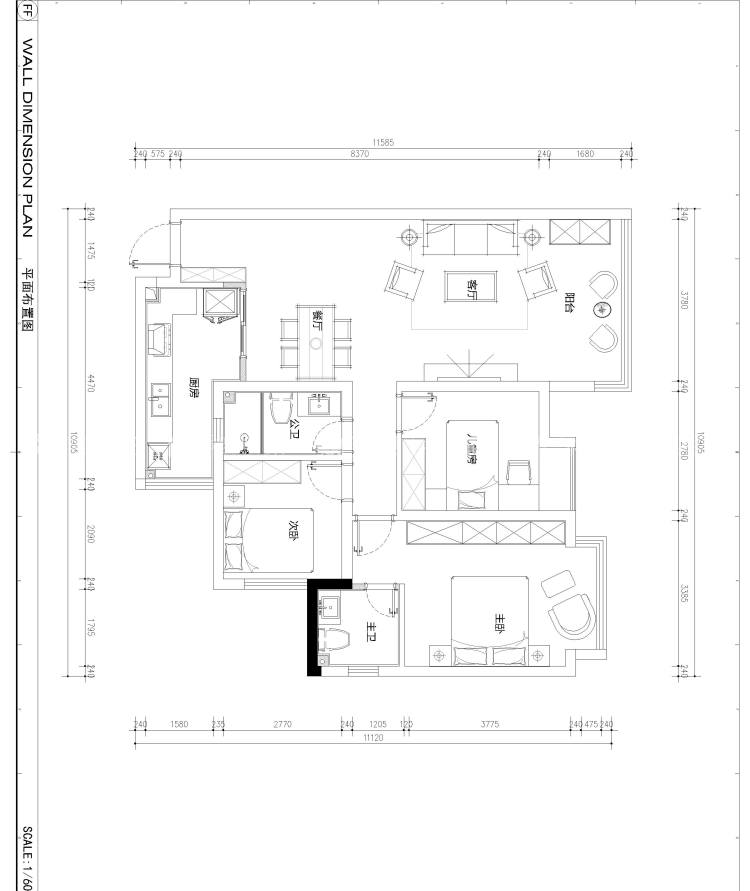
平面设计图及设计说明

优化布局 打通生活阳台卫生间干湿分离 主卧整排衣柜增加储物空间

103平芳华里现代风-平面设计图及设计说明

3D全景图

103平芳华里现代风-3D全景图图标
103平芳华里现代风-'全景图封面图'

客厅效果图及设计说明

透亮 温暖舒适 线条装饰 增加别样的氛围感

103平芳华里现代风-客厅效果图及设计说明

餐厅效果图及设计说明

空间大 满足多人用餐需求 加上挂件点缀体现别样的感觉

103平芳华里现代风-餐厅效果图及设计说明

卧室效果图及设计说明

温馨舒适 储物空间强

103平芳华里现代风-卧室效果图及设计说明

小区名称 |芳华里

装修风格 |现代简约

房屋面积 |103㎡

所属门店 |乐山店

年工作经验
擅长风格:

预约设计师
咨询报价

获取报价
关闭

预约设计师

选择城市

手机号

房屋面积

*请您放心,我们将采取一定的安全措施来保护您的隐私信息

立即预约
免费量房
参观工地
在线客服
咨询报价
置顶