甄选案例

专业大咖设计  海量精美案例任您品鉴

230平幸福里别墅现代风格

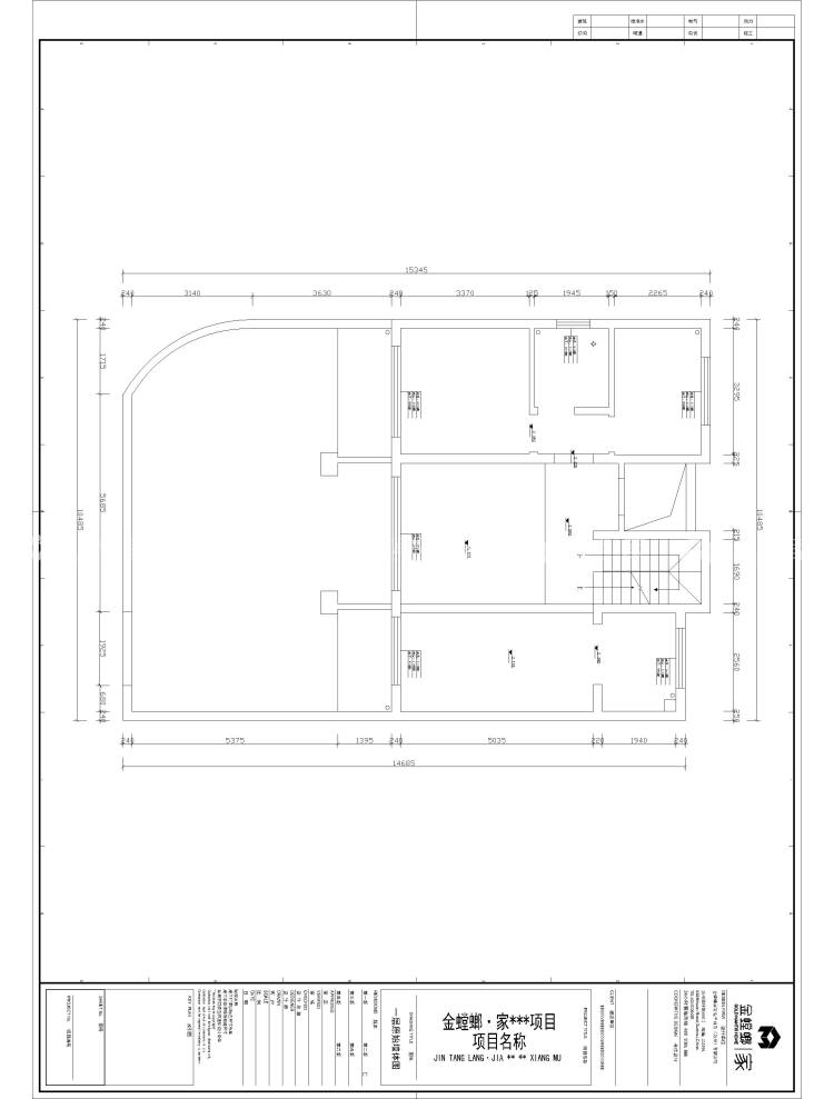
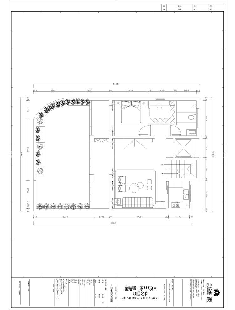
业主需求&原始结构图

四口之家,三楼做套房,二楼女孩和男孩住,每个空间都需要衣帽间,一楼不需要餐桌,地下室需要酒窖和瑜伽室

230平幸福里别墅现代风格-业主需求&原始结构图 230平幸福里别墅现代风格-业主需求&原始结构图 230平幸福里别墅现代风格-业主需求&原始结构图 230平幸福里别墅现代风格-业主需求&原始结构图

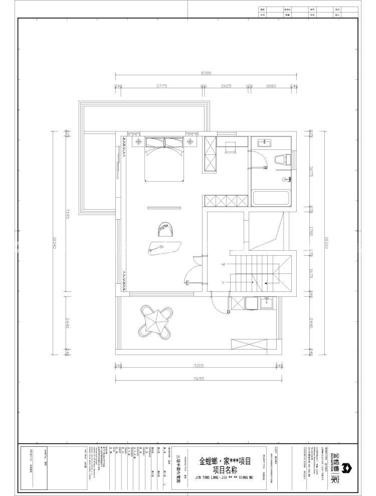
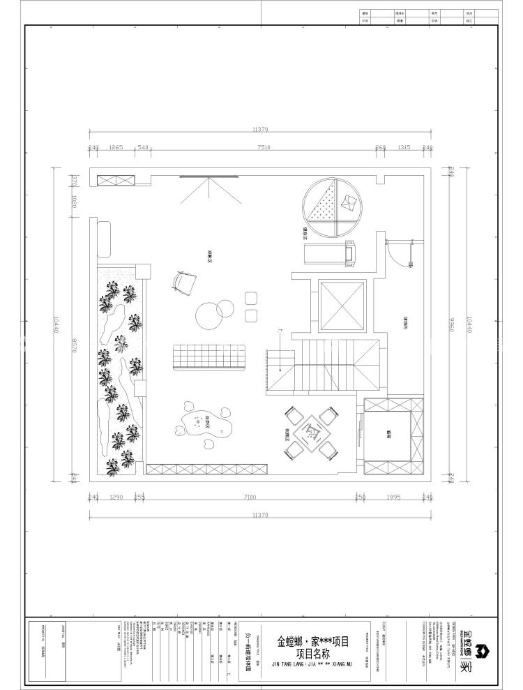
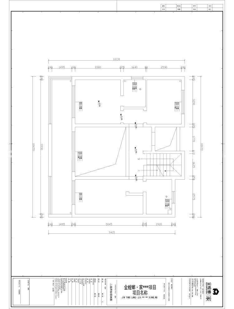
平面设计图及设计说明

本方案以现代风格为主题,一楼挑空大客厅,二楼儿童房,整个三楼作为主卧,空间宽阔,整体简单大气。

230平幸福里别墅现代风格-平面设计图及设计说明 230平幸福里别墅现代风格-平面设计图及设计说明 230平幸福里别墅现代风格-平面设计图及设计说明 230平幸福里别墅现代风格-平面设计图及设计说明

客厅效果图及设计说明

客厅为挑空,电视背景墙选用岩板和木格栅来搭配,沙发背景墙选用木饰面,顶面无主灯设计,整体奢华而不繁琐,色彩搭配上也非常的和谐。

230平幸福里别墅现代风格-客厅效果图及设计说明

餐厅效果图及设计说明

一楼不需要方餐桌,所以设计成沙发背景墙 整体东西向空间非常宽阔。

230平幸福里别墅现代风格-餐厅效果图及设计说明

卧室效果图及设计说明

整个三楼都作为主卧区,空间是非常大的,在主卧里面还设计了书房,整体色调为暖色,吊顶做了圆弧处理,搭配上香槟金的金属条,显得整个空间格外明朗通透。

230平幸福里别墅现代风格-卧室效果图及设计说明 230平幸福里别墅现代风格-卧室效果图及设计说明

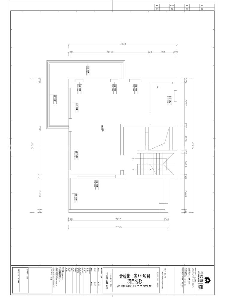
儿童房

男孩房在二楼的位置,室内配有衣帽间,有足够大的储物空间。

230平幸福里别墅现代风格-儿童房

儿童房

女孩房也是在二楼位置,女孩房直接联通阳台,增加孩子的学习空间,背景墙选用护墙板来设计的,也配有衣帽间,功能性、储物空间都满足了客户需求。

230平幸福里别墅现代风格-儿童房

其他空间

地下室根据客户需求设计了麻将室、影音室、瑜伽室,还有酒窖,整体都是开放式的,这样显得空间大空间不沉闷,整体设计井井有条,明朗大气。

230平幸福里别墅现代风格-其他空间 230平幸福里别墅现代风格-其他空间 230平幸福里别墅现代风格-其他空间

小区名称 |幸福里

装修风格 |现代简约

房屋面积 |230㎡

所属门店 |曲阜店

年工作经验
擅长风格:

预约设计师
咨询报价

获取报价
关闭

预约设计师

选择城市

手机号

房屋面积

*请您放心,我们将采取一定的安全措施来保护您的隐私信息

立即预约
免费量房
参观工地
在线客服
咨询报价
置顶