甄选案例

专业大咖设计  海量精美案例任您品鉴

140平招商学府现代风格

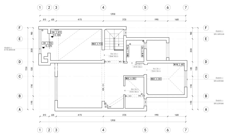
业主需求&原始结构图

业主为年轻男士 喜欢无主灯 性格内敛深邃 喜欢有质感的空间

140平招商学府现代风格-业主需求&原始结构图 140平招商学府现代风格-业主需求&原始结构图

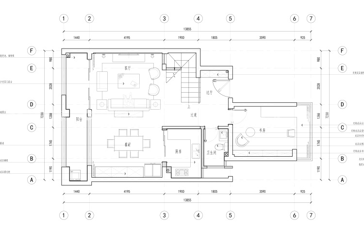
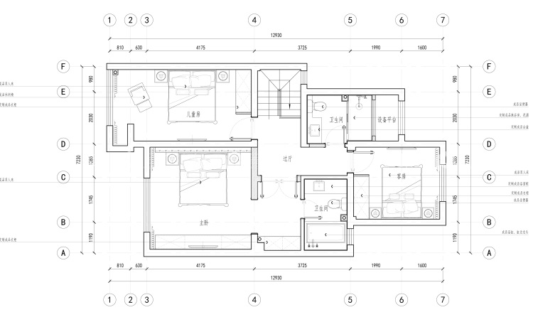
平面设计图及设计说明

竖厅客餐厅连体空间动线流畅主卧进门仪式感十足 功能便利

140平招商学府现代风格-平面设计图及设计说明 140平招商学府现代风格-平面设计图及设计说明

客厅效果图及设计说明

深色木作体现出高级的质感 白色岩板点缀空间

140平招商学府现代风格-客厅效果图及设计说明

餐厅效果图及设计说明

空间搭配质感高级 厨房 餐厅动线便利

140平招商学府现代风格-餐厅效果图及设计说明

卧室效果图及设计说明

卧室整合空间和其他空间一致 采用深色木作的质感 搭配落地窗 高级感十足

140平招商学府现代风格-卧室效果图及设计说明

小区名称 |招商学府

装修风格 |现代简约

房屋面积 |140㎡

所属门店 |常熟生活体验馆

年工作经验
擅长风格:

预约设计师
咨询报价

获取报价
关闭

预约设计师

选择城市

手机号

房屋面积

*请您放心,我们将采取一定的安全措施来保护您的隐私信息

立即预约
免费量房
参观工地
在线客服
咨询报价
置顶