甄选案例

专业大咖设计  海量精美案例任您品鉴

我的145㎡美式二套房,当然要装成我最爱的样子

原始结构图

【业主需求】:本案是个145平米的三居室,是业主的第二套房,所以想完全按照自己的喜好来装这个家。喜欢美式风格,有一个7岁的小男孩,喜欢蓝色,储物空间要多。

我的145㎡美式二套房,当然要装成我最爱的样子-原始结构图

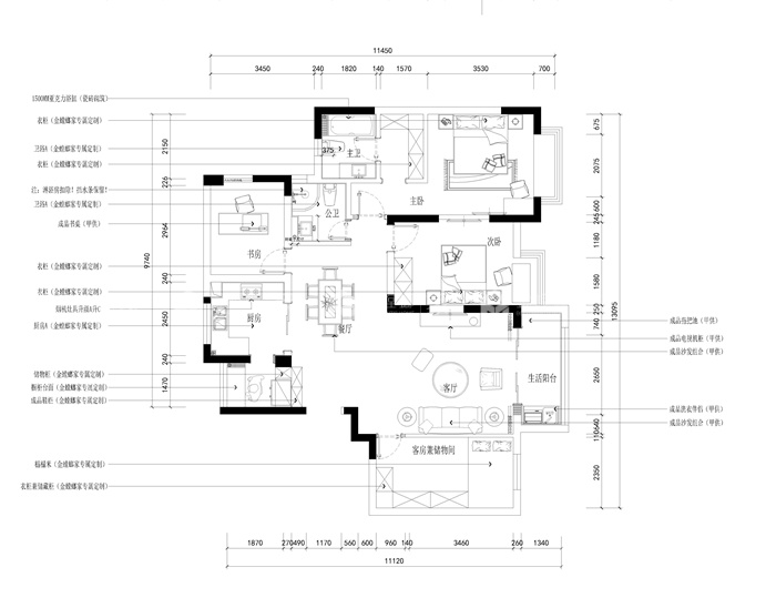
平面布置图

我的145㎡美式二套房,当然要装成我最爱的样子-平面布置图

黑色皮质沙发与抱枕相得益彰,给人纯正的美式感。实木家具质感厚重所以墙壁没有过多花哨的搭配,简单的装饰画就能增色不少。

我的145㎡美式二套房,当然要装成我最爱的样子-

我的145㎡美式二套房,当然要装成我最爱的样子-

利用沙发做一个隐形的隔断,既不影响空间的通透性又能划分出客厅与门厅各自的区域,做到合理的功能区分。门厅处设计了整墙的柜体,满足业主的储物需求。

我的145㎡美式二套房,当然要装成我最爱的样子-

我的145㎡美式二套房,当然要装成我最爱的样子-

餐厅吊顶与地面拼花相呼应,在开阔的空间中隔离出餐厅区域,在视觉和动线中形成隐形的隔断。厨房做成封闭式能有效减少油烟的侵蚀,符合国人的生活习惯。

我的145㎡美式二套房,当然要装成我最爱的样子-

我的145㎡美式二套房,当然要装成我最爱的样子-

卧室以舒适为主,白色背景墙造型简约,两幅充满童趣的挂画让空间活泼不少。飘窗带柜拥有一定的储物功能,保证了空间的整洁。

我的145㎡美式二套房,当然要装成我最爱的样子-

我的145㎡美式二套房,当然要装成我最爱的样子-

儿童房按照业主儿子的需求墙壁刷蓝,其余皆以白色为主,在配饰的选择上也是同样的色调,家具则选择造型简单实用的,添加书桌椅,让这个空间拥有多重功能。

我的145㎡美式二套房,当然要装成我最爱的样子-

我的145㎡美式二套房,当然要装成我最爱的样子-

衣帽间配制了榻榻米,既可以做客卧,又能放不常用的物品,实用方便。

我的145㎡美式二套房,当然要装成我最爱的样子-

我的145㎡美式二套房,当然要装成我最爱的样子-

小区名称 |弘阳尊邸

装修风格 |其他

房屋面积 |145㎡

所属门店 |常熟总店

年工作经验
擅长风格:

预约设计师
咨询报价

获取报价
关闭

预约设计师

选择城市

手机号

房屋面积

*请您放心,我们将采取一定的安全措施来保护您的隐私信息

立即预约
免费量房
参观工地
在线客服
咨询报价
置顶