甄选案例

专业大咖设计  海量精美案例任您品鉴

理想的家,满满的清新和舒适

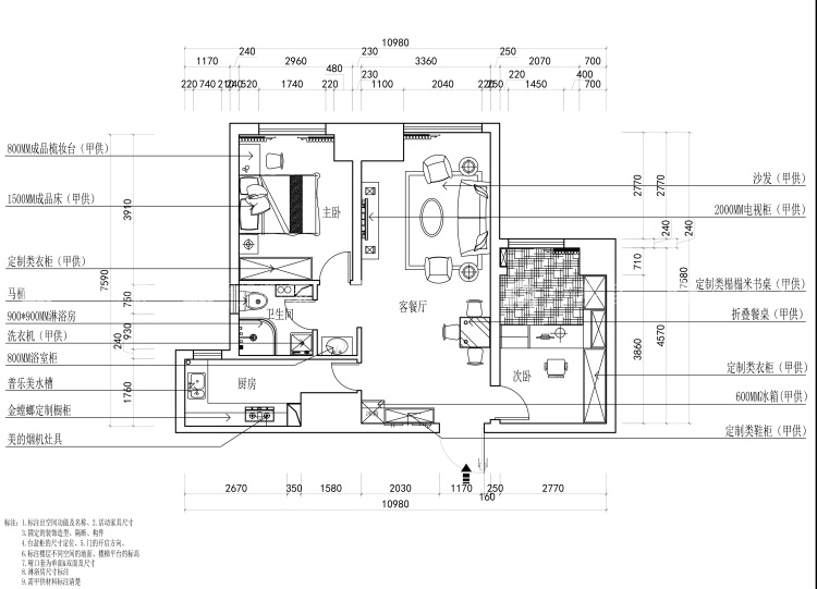
业主需求&原始结构图

业主喜欢北欧风的清新,简单,典雅。追求实用,简洁大方。

理想的家,满满的清新和舒适-业主需求&原始结构图

平面设计图及设计说明

87平米的小户型,由于厨房面积较小,所以将冰箱与衣帽柜巧妙的结合在一起。在卫生间区域设计了干湿分区,使得主人在早晨上班赶时间时不会太拥挤。进门处是餐厅区域,所以设计了折叠餐桌,使空间动线更加舒适。

理想的家,满满的清新和舒适-平面设计图及设计说明 理想的家,满满的清新和舒适-平面设计图及设计说明

客厅效果图及设计说明

客餐厅整个空间装饰十分精致,超清新的自然风,淡蓝色加素雅的饰品搭配,将客餐厅和谐的相连。一切搭配都彰显原木色调和自然气息,沙发背景墙上装饰画简单又个性十足。整体硬装非常简洁,淡蓝色和白色的大面积搭配,营造出舒适的氛围。

理想的家,满满的清新和舒适-客厅效果图及设计说明 理想的家,满满的清新和舒适-客厅效果图及设计说明

餐厅效果图及设计说明

餐厅区域与客厅相连,餐桌选用与电视柜以及衣帽柜同色系的木色,使得整个空间统一协调。又设计折叠餐桌,前期小两口使用起来更加舒适,又兼备一家四五口一起就餐的功能。

理想的家,满满的清新和舒适-餐厅效果图及设计说明

卧室效果图及设计说明

女业主要求主卧室中有一个梳妆台,又考虑地方有限,所以将床两边分别放置木色的梳妆台和床头柜,用壁灯增加空间的氛围,床头背景墙搭配业主喜欢的灰色,使整个空间优雅舒适。

理想的家,满满的清新和舒适-卧室效果图及设计说明 理想的家,满满的清新和舒适-卧室效果图及设计说明

卧室

业主是一对年轻夫妇,想要有一个休闲浪漫的书房空间,又考虑后期孩子的居住,所以在榻榻米上设计了一个吧台式的书桌,兼备卧室以及书房的功能,具有舒适与美观并存的享受。

理想的家,满满的清新和舒适-卧室 理想的家,满满的清新和舒适-卧室

厨房

厨房中橱柜使用与家具一致的原木色,搭配白色的墙砖,使得空间干净,明亮。

理想的家,满满的清新和舒适-厨房

卫生间

设计干湿分区,使得空间最大功能化合理利用。

理想的家,满满的清新和舒适-卫生间

小区名称 |中冶世家华庭

装修风格 |原木风

房屋面积 |87㎡

所属门店 |金螳螂家

年工作经验
擅长风格:

预约设计师
咨询报价

获取报价
关闭

预约设计师

选择城市

手机号

房屋面积

*请您放心,我们将采取一定的安全措施来保护您的隐私信息

立即预约
免费量房
参观工地
在线客服
咨询报价
置顶